EasyManua.ls Logo

McHale Fusion 2 - Wrapper During 50?50 Operation

McHale Fusion 2
193 pages
Print Icon
To Next Page IconTo Next Page
To Next Page IconTo Next Page
To Previous Page IconTo Previous Page
To Previous Page IconTo Previous Page
Loading...
McHale Fusion 2 hydraulic systems overview section
12-21
McHale Fusion 2 round baler wrapper technical service manual
Issue 1: 0208
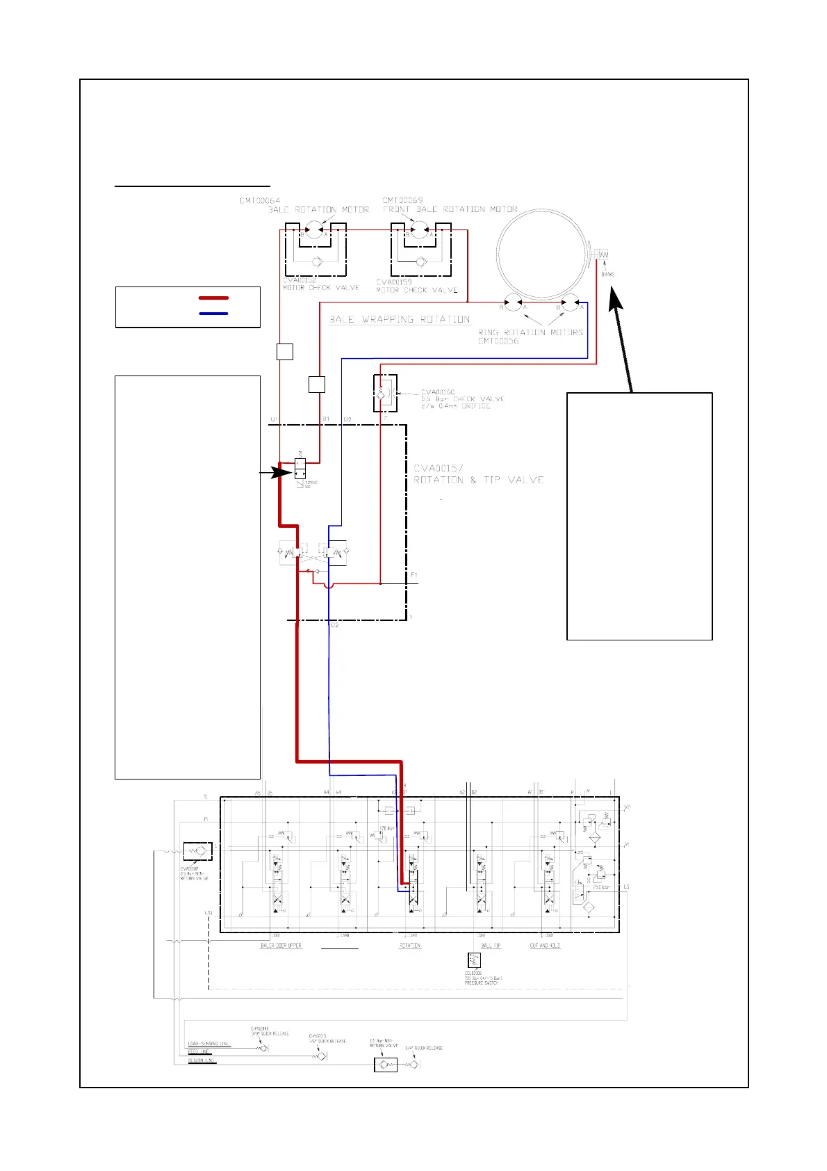
12.9.4: Wrapper during 50/50 operation
Bale Wrapping Rotation
(Rotation Section Shown)
Function:50/50
Wrapping mode
Feed =
Return =
If there is pressure
on line D1 or D2 the
brake is lifted off via
the shuttle valve.
The oil returns from
the brake via
CVA00160 (small
restrictor) which
delays onset of the
brake.
As a result the brake
is not activated until
the ring has stopped.
1
Energised when in
50/50 mode
Oil flows intermittently
for 50% of the time
through line 1 and for
50% of the time
through line 2.
As a result the ring
does twice the
number of revolution
and the bale stops for
a half rotation and
then rotates for half a
rotation
Also energised
At the start of wrapping to
hold the bale (gives the
plastic a chance to bond)
For the last half
rotation to make cut and
hold operations more
effective.
2
D1
KNIFE/FLOOR

Table of Contents

Related product manuals