EasyManua.ls Logo

Rockwell Automation Allen-Bradley GuardShield 450L-B4FNxYD

Rockwell Automation Allen-Bradley GuardShield 450L-B4FNxYD
216 pages
To Next Page IconTo Next Page
To Next Page IconTo Next Page
To Previous Page IconTo Previous Page
To Previous Page IconTo Previous Page
Loading...
110 Rockwell Automation Publication 450L-UM001D-EN-P - December 2019
Chapter 6 Installation and Wiring
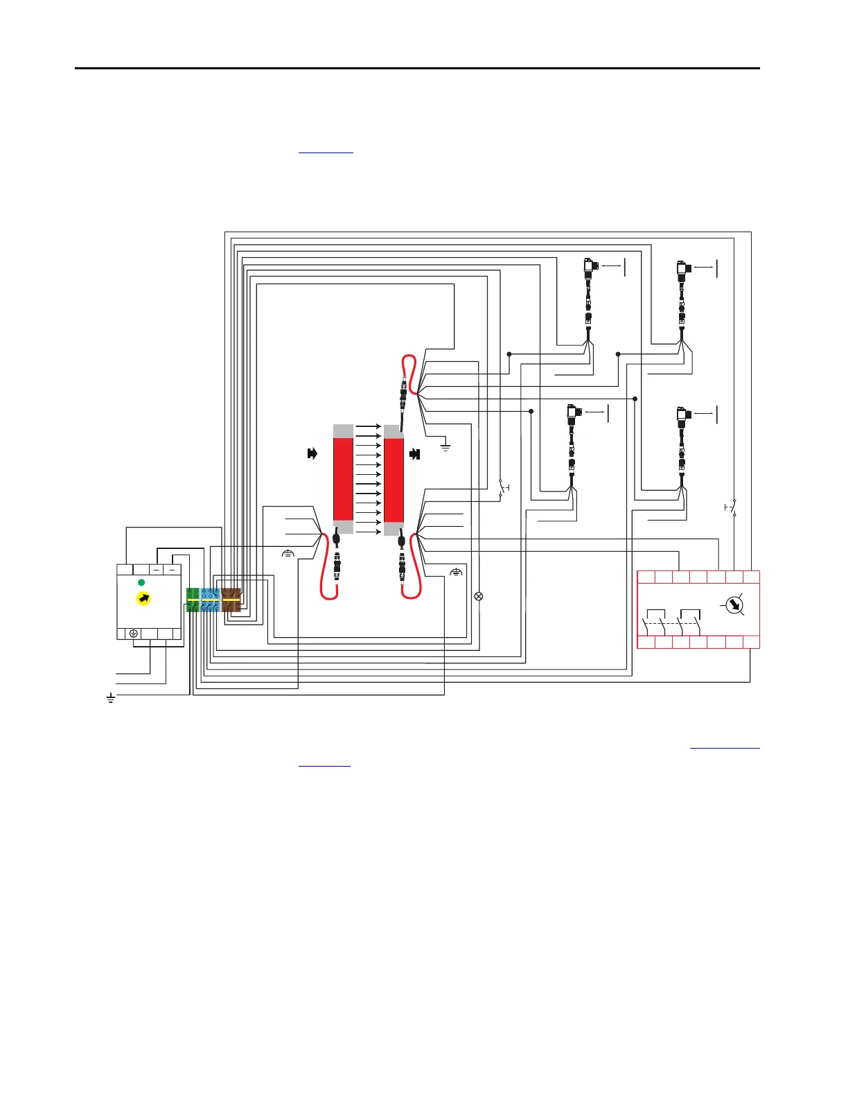
Four-sensor Muting with Muting Plug-in
Figure 75 is a four-sensor muting example with the 450L-E safety light curtain.
The transmitter uses the 5-pin transmitter plug-in. The receiver uses the 8-pin
muting plug-in at the bottom and the 8-pin I/O plug-in at the top.
Figure 75 - Example Schematic for Four-sensor Muting of a 450L-E Light Curtain
The DIP switch settings for the receiver muting plug-in are shown in Table 51 on
page 111. Switches 2, 3, 5, and 6 can be changed to ON, if needed by the
application. Switch 7 must be OFF and switch 8 must be ON. Switches 9, 10, and
11 must be set to ON for four-sensor muting. The transmitter and I/O plug-in
do not have DIP switches.
450L-E4FN1200YD
450L-E4FN1200YD
S11 S12 S21 S22
S34
A1
13 L11
A2
14 23 24 Y32
SI
440R-S12R2
RESET
0
MM
AM
FE
FE
Muting Sensor 2
42EF-P2MPB-F4
889D-F4AC-5 889D-F4AC-5
Muting Sensor 1
42EF-P2MPB-F4
Blue Blue
White (Not Used)
Brown
2 Brown
Black Black
Brown
450L-APT-PW-5
898D-F5NC-5
450L-APR-MU-8
898D-F8NB-5
450L-APC-IO-8
898D-F8NB-5
Tx
Rx
5 Gray OSSD1
1 White Aux.
6 Pink OSSD2
4 Yellow EDM
Mute
Dependent
Override
Mute
Active
8 Red
3 Green
7 Blue
White (Not Used)
Muting Sensor 3
42EF-P2MPB-F4
889D-F4AC-5 889D-F4AC-5
Muting Sensor 4
42EF-P2MPB-F4
Blue Blue
White (Not Used)
Brown
Black Black
Brown
White (Not Used)
Gray
Blue
Black (Not Used)
White (Not Used)
Brown
2 Brown
5 Gray MS1
1 White MS3
6 Pink MS2
4 Yellow MS4
8 Red Mute Lamp
3 Green
7 Blue
+24V DC
24V Com (0V)
L
L
++
N
N
1606-XLP95E
24-
28V
DC ok
120…240V AC
PE
Primary Protective Earth Ground
RESET

Table of Contents