EasyManua.ls Logo

Siemens 7SC80 - Synchrocheck; General

Siemens 7SC80
782 pages
Print Icon
To Next Page IconTo Next Page
To Next Page IconTo Next Page
To Previous Page IconTo Previous Page
To Previous Page IconTo Previous Page
Loading...
Synchrocheck
When connecting two sections of a power system, the synchrocheck function verifies that the switching does
not endanger the stability of the power system.
Applications
Typical applications are, for example, the synchronization of a feeder and a busbar or the synchronization
of two busbars via tie-breaker.
General
Synchronous power systems exhibit small differences regarding frequency and voltage values. Before connec-
tion it is to be checked whether the conditions are synchronous or not. If the conditions are synchronous, the
system is energized; if they are asynchronous, it is not. The circuit breaker operating time is not taken into
consideration. The synchrocheck function is activated via address 161 SYNCHROCHECK.
For comparing the two voltages of the sections of the power system to be synchronized, the synchrocheck
function uses the reference voltage V
1
and an additional voltage to be connected V
2
.
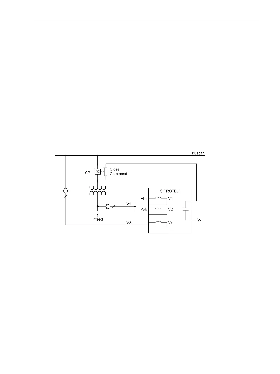
If a transformer is connected between the 2 voltage transformers, as in the following example, its vector
group can be adapted in the 7SC80 so that no external adaptors are required.
[7sc80-synchro-fkt-einspeis-24012013, 1, en_US]
Figure 2-111 Infeed
2.20
2.20.1
Functions
2.20 Synchrocheck
SIPROTEC Compact, 7SC80, Manual 337
E50417-G1140-C486-A8, Edition 07.2017

Table of Contents