EasyManua.ls Logo

WinGD X72 - Page 238

WinGD X72
514 pages
Print Icon
To Next Page IconTo Next Page
To Next Page IconTo Next Page
To Previous Page IconTo Previous Page
To Previous Page IconTo Previous Page
Loading...
Operation33261/A1
Winterthur Gas & Diesel Ltd.
2/ 2
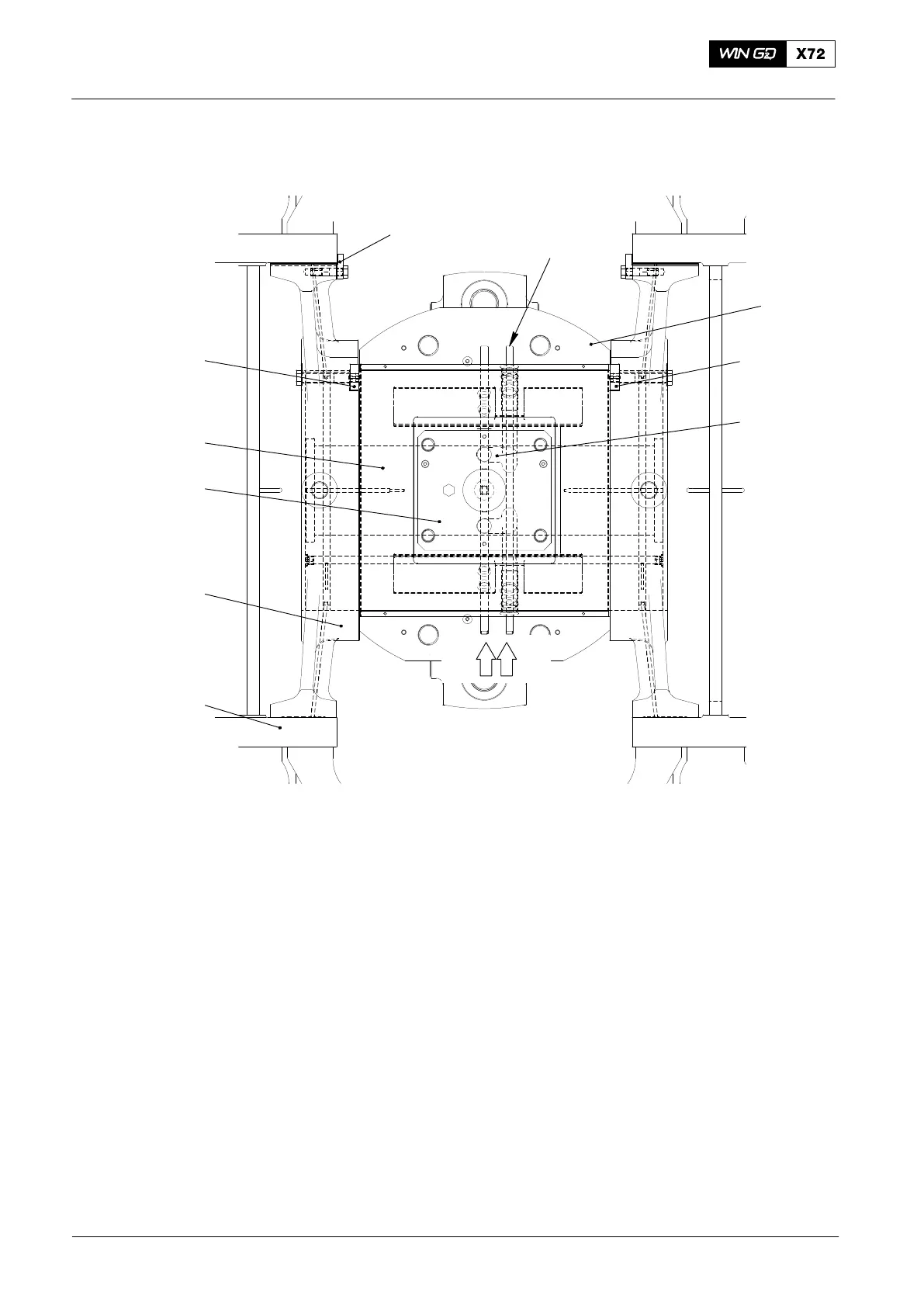
FUEL SIDE
EXHAUST
SIDE
11
4
9
13
PCCO
12
10
6
9
3
WCH01219
7
Fig. 2: Crosshead and Guide Shoe (Top View)
3 Guide shoe 11 Groove (in connecting rod)
4 Connecting rod 12 Guide rail
6 Crosshead pin 13 Groove (in crosshead pin)
7 Compression shim
9 Holding plate CO Crosshead lubricating oil inlet
10 Column PC Piston cooling oil inlet
Crosshead and Guide Shoe
2015-03

Table of Contents

Other manuals for WinGD X72

Related product manuals