EasyManua.ls Logo

WinGD X72 - Page 406

WinGD X72
514 pages
Print Icon
To Next Page IconTo Next Page
To Next Page IconTo Next Page
To Previous Page IconTo Previous Page
To Previous Page IconTo Previous Page
Loading...
Operation72181/A1
Winterthur Gas & Diesel Ltd.
2/ 12
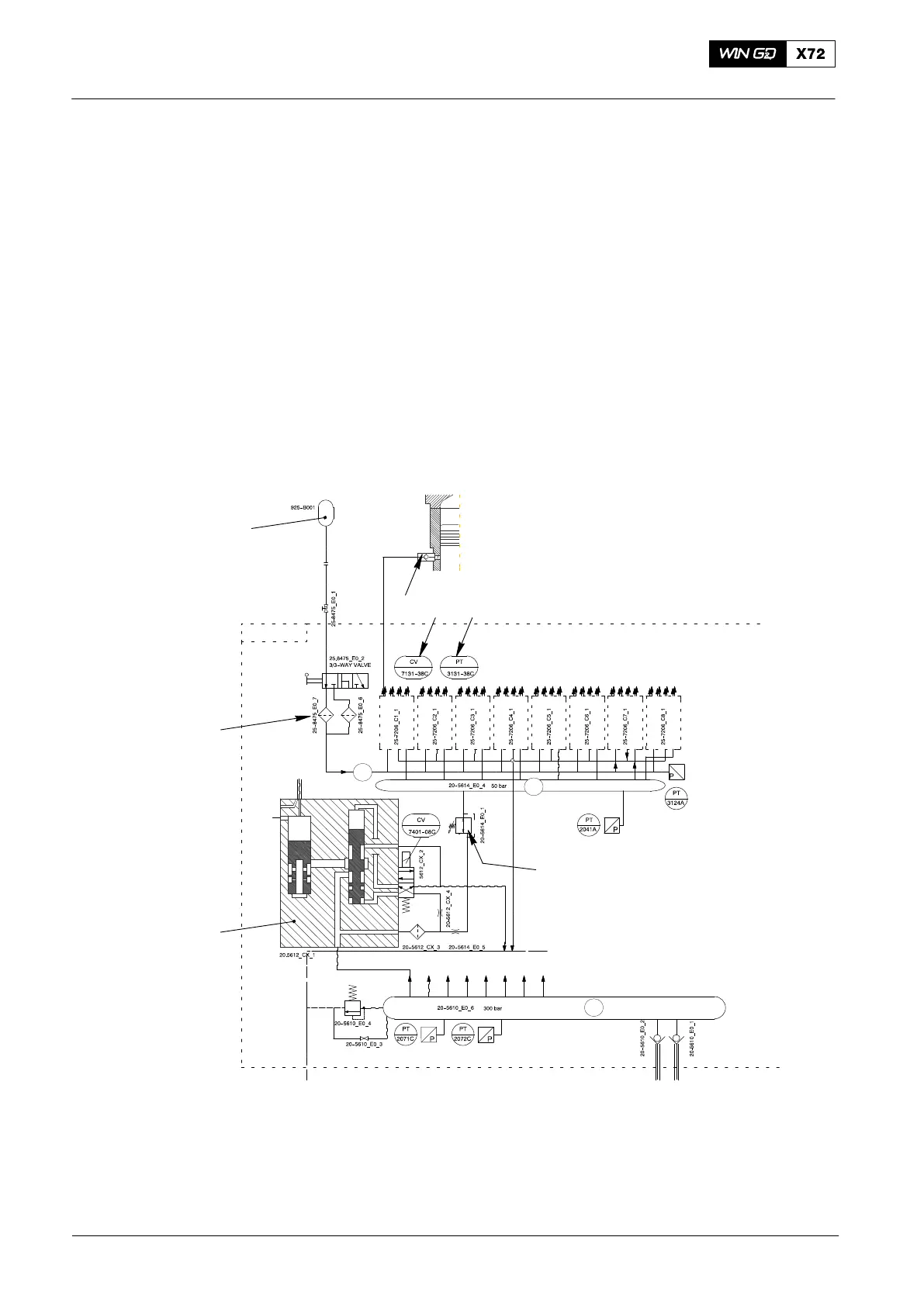
2. Lubricating Oil System Overview
The diagram Fig. 1 shows the complete system, which has the components that
follow:
D Cylinder lube oil tank (1) for cylinder lubricating oil (plant side)
D Duplex filter (10) with a lever to change filters
D Lubricating quills (2) with a non-return valve and an injection nozzle
D System control from the ECS (see 4002-1, paragraph 3.4 Cylinder Lubricating
Control).
The cylinder lubricating pumps 25-7230_C#_1 (one for each cylinder) have the parts
that follow:
D Cylinder control module 20 (CCM-20)
D 4/2-way solenoid valve (2)
D Pressure transmitter (3).
WCH02267
3
RAIL UNIT
8
10
1
4
6
2
5
7
9
Fig. 1: Schematic Diagram Cylinder Lubrication System
1 Cylinder lube oil tank 6 Pressure reducing valve
2 Lubricating quills 7 Servo oil rail
3 Control valve CV7131C CV7138C 8 Exhaust valve control unit
4 Pressure transmitter PT3131C PT3138C 9 Lubricating oil supply pipe
5 Servo oil supply pipe 10 Duplex filter
2015-03
Cylinder Lubrication

Table of Contents

Other manuals for WinGD X72

Related product manuals