EasyManua.ls Logo

WinGD X72 - Page 447

WinGD X72
514 pages
Print Icon
To Next Page IconTo Next Page
To Next Page IconTo Next Page
To Previous Page IconTo Previous Page
To Previous Page IconTo Previous Page
Loading...
Operation
80181/A1
Winterthur Gas & Diesel Ltd.
1/ 1
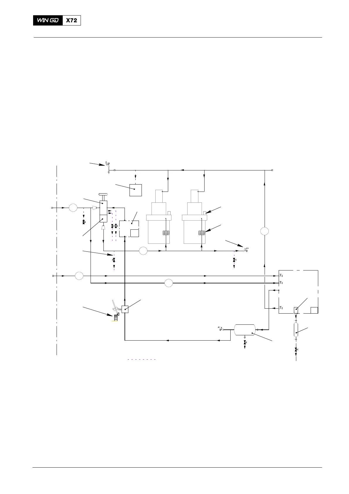
Starting Air Diagram
1. General
The starting air system is shown in the schematic diagram below.
The control air supply unit and air bottle 6 supply the necessary control air for the
engine.
For more data, see the Pipe Diagram Air System 4003-9.
You must make sure that the compressed air is clean and dry.
You must open the drain valves regularly to remove condensation from the starting air
system.
A
E
15 l
1
2
3
4
5
6
7
8
9
10
12
13
14
15
16
17
18
ENGINEPLANT
Control Air
Supply Unit
A1
A2
A3
A6
3
VENT / DRAIN
11
Fig. 1: Schematic diagram starting and control air
1 Starting valve 10 Non-return valve
2 Flame arrestor 11 Control valve and valve unit for start
3 Pressure safety valve 12 Starting air shut-off valve
4 Air filter 13 Oil leakage return (from air spring)
5 Water bottle 14 Air spring air supply
6 Air bottle (control air supply) 15 Starting air
7 3/2-way valve (turning gear) 16 Control air (board supply)
8 Turning gear 17 Starting air pipe
9 Vent / drain 18 Starting air inlet
2014

Table of Contents

Other manuals for WinGD X72

Related product manuals