EasyManua.ls Logo

WinGD X72 - Crank Angle Sensor Unit

WinGD X72
514 pages
Print Icon
To Next Page IconTo Next Page
To Next Page IconTo Next Page
To Previous Page IconTo Previous Page
To Previous Page IconTo Previous Page
Loading...
Operation
92231/A1
Winterthur Gas & Diesel Ltd.
1/ 2
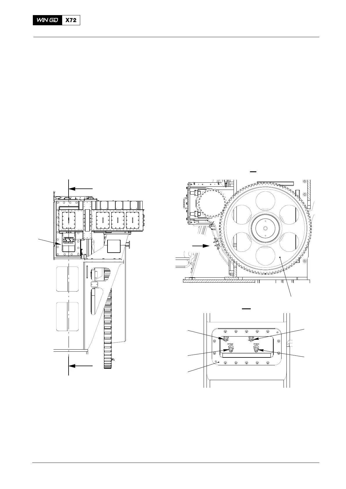
Crank Angle Sensor Unit
1. General
The crank angle sensor unit is installed on the supply unit drive (7) at the driving end
(see Fig. 1).
There are two crank angle systems that monitor the teeth on the intermediate wheel.
The two sets of proximity sensors (2, 3 and 4, 5) operate independently to sense the
teeth on the intermediate wheel (1).
Two more proximity sensors (10) and (11) are used to find the crank angle marks for
TDC and BDC on the flywheel (8) (see Fig. 2).
All proximity sensors are connected to each CCM20 (see 40021 Engine Speed and
Crank Angle Sensor, paragraph 3.5).
WCH01193
II
4
5
FUEL SIDE
2
6
3
I
1
II
7
I
I
Fig. 5: Crank angle sensor unit
1 Intermediate wheel 5 Proximity sensor ST5134C
2 Proximity sensor ST5131C 6 Sensor adapter
3 Proximity sensor ST5132C 7 Supply unit drive
4 Proximity sensor ST5133C
2014

Table of Contents

Other manuals for WinGD X72

Related product manuals