EasyManua.ls Logo

WinGD X72 - Page 50

WinGD X72
514 pages
Print Icon
To Next Page IconTo Next Page
To Next Page IconTo Next Page
To Previous Page IconTo Previous Page
To Previous Page IconTo Previous Page
Loading...
Operation00801/A1
Winterthur Gas & Diesel Ltd.
2/ 2
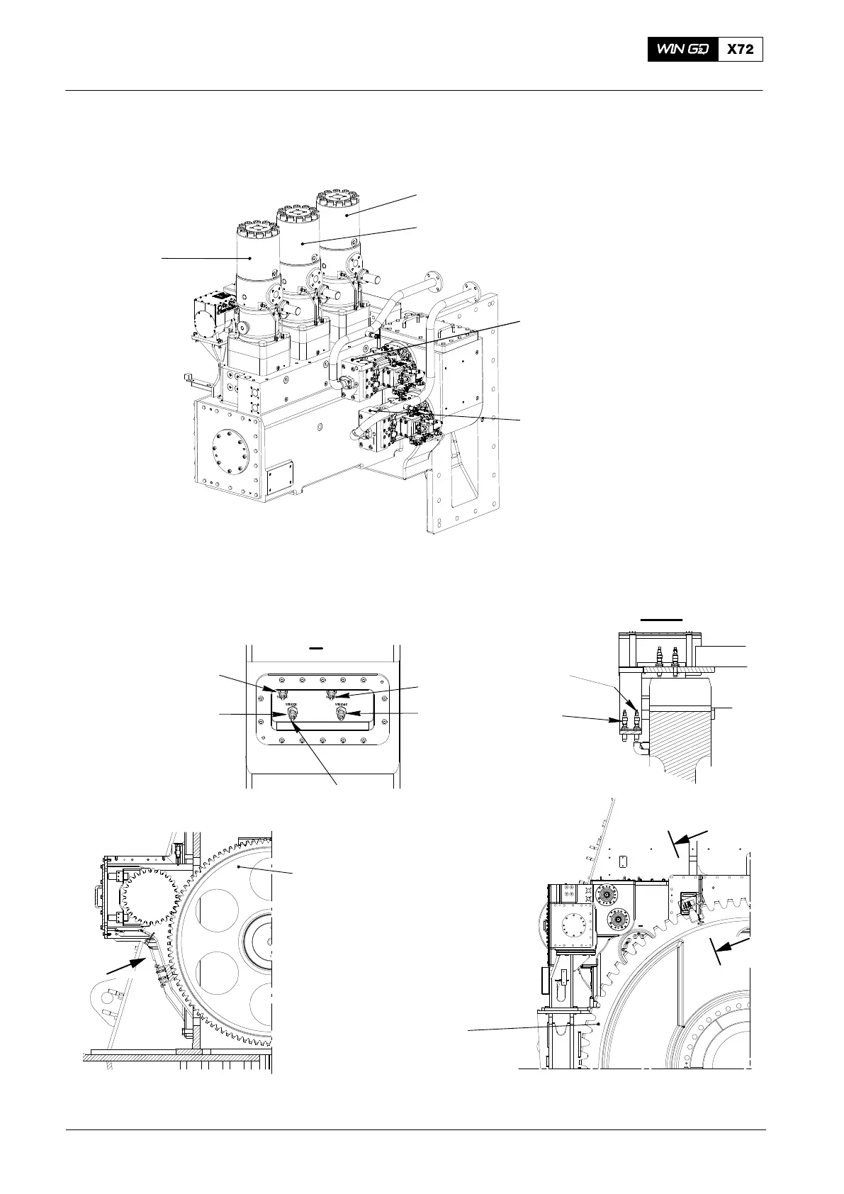
2. Flex Parts
Fuel Pump 1
Fuel Pump 2
Fuel Pump 3
Servo Oil Pump 2
Servo Oil Pump 1
EXHAUST
SIDE
DRIVING
END
WCH01192
I
Proximity
Sensors
ST5131C
ST5131C
ST5133C
ST5134C
Crank Angle
Sensor Unit
WCH01193
I
II
II
ZS5123C
ZS5124C
II-II
Crankshaft
gearwheel
Flywheel
Fig. 2: Flex Parts
2014
Engine Numbering and Designations

Table of Contents

Other manuals for WinGD X72

Related product manuals