EasyManua.ls Logo

Alpha 6000 - 35 R5 GB;37 R5 PB~3015 GB;3018 PB Wiring Diagram

Alpha 6000
219 pages
Print Icon
To Next Page IconTo Next Page
To Next Page IconTo Next Page
To Previous Page IconTo Previous Page
To Previous Page IconTo Previous Page
Loading...
Chapter 2 Installation and Wiring
36
24V
PLC
X1
X2
X3
X4
X5
X6
X7
X8
COM
PE
10V
AI1
AI2
GND
PE
Power Supply
3-phase
380V
50/60HZ
0~10V
0
~20mA
PE
GND
AO1
AO2
PE
M
Analog output
0/4
~20mA current
SW2
A01
0/4
~20mA
0/2
~10V
A02
SW3
MC
24V
DO
COM
PE
Y1
Y2
COM
TA
TB
TC
485+
485-
GND
RS485
SW4
ON ON
SW1
AI1 AI2
ON
OFF
I
V
V
I
P1
+/B1
B2
-
DC reactor
(connect optional
parts externally)
B
r
a
k
i
n
g
R
e
s
i
s
t
o
r
(connect optional
parts externally)
ON
Motor
Ground
Open collecot pulse
output terminal 0
~50KHz
Frequency meter
Bi-direction open
collector output
Output1
Output2
Common terminal
Ground
RS485 communication
interface
Programmable
relay output
Programmable
relay output
Frequency Reference
Frequence preset
potentiometer
(Input resistance
>500Ω)
Max input
frequency:
50KHz
High speed pulse input
Multi-function input1
Multi-function input2
Multi-function input3
Multi-function input4
Multi-function input5
Multi-function input6
Multi-function input7
Multi-function input8
Matched
resistance
PE
PG
PE
X8
X7
COM
24V
BRC
BRB
BRA
0/2~10V voltage
PE
CME
0~20mA
0
~10V
ON
R
R
S
S
T
T
U
V
W
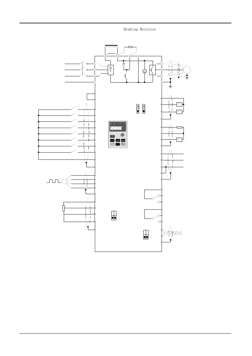
Fig. 2-35 35R5GB/37R5PB~3015GB/3018PB Wiring diagram

Table of Contents

Related product manuals