EasyManua.ls Logo

APS CPS100 Series - Page 185

APS CPS100 Series
231 pages
Print Icon
To Next Page IconTo Next Page
To Next Page IconTo Next Page
To Previous Page IconTo Previous Page
To Previous Page IconTo Previous Page
Loading...
CPS100 SERIES OPERATION MANUAL
SECTION 8:
Master Slave Operation
Entire Contents Copyright 2018 by Adaptive Power Systems, Inc. (APS) • All Rights Reserved • No reproduction without written authorization from APS.
APS CPS100 Series Power Source Operation Manual Page 185 of 231
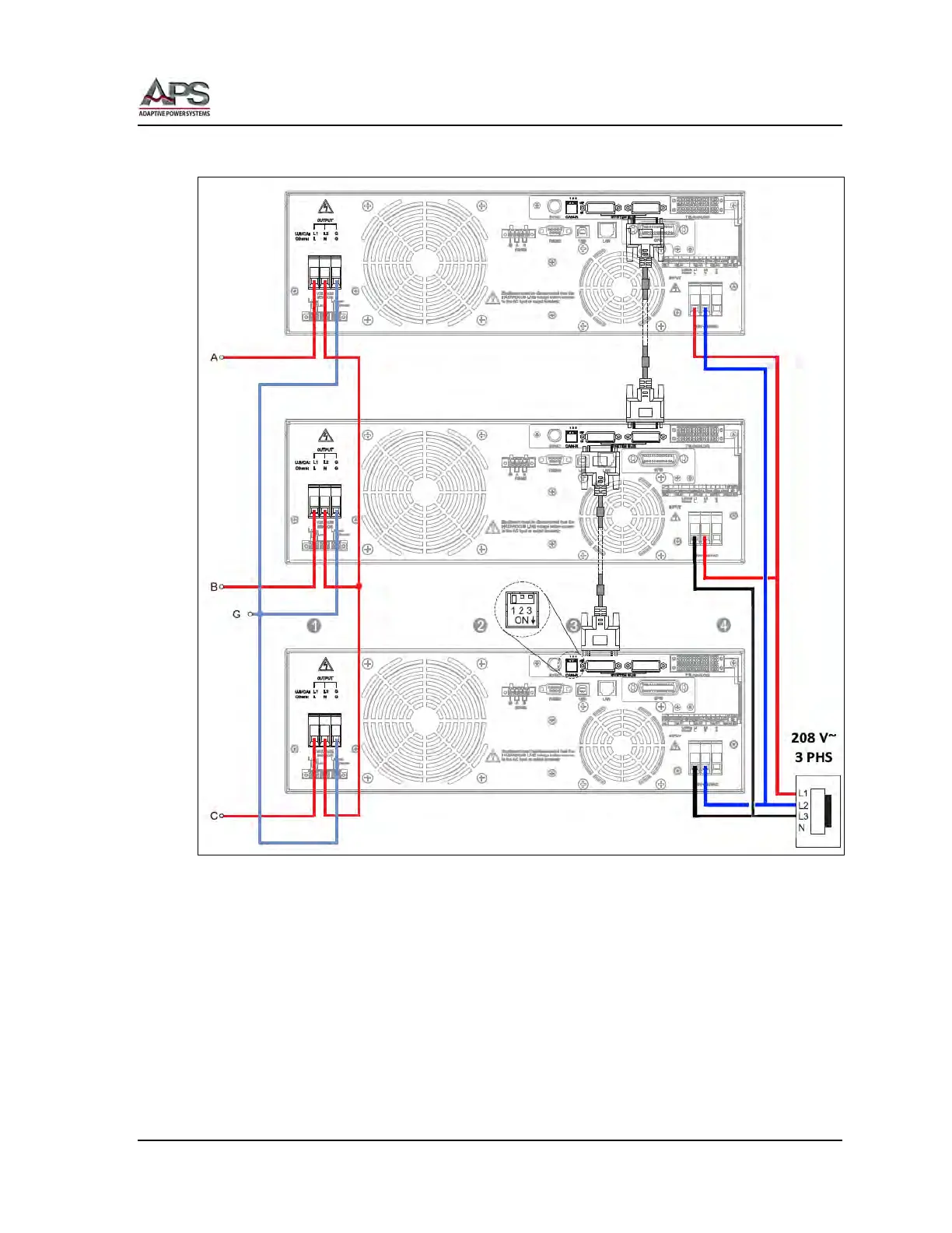
8.5.4.4 3-Phase Mode Delta (4-Wire) Connection Diagram 208 V~ 3ø AC Input
Call outs:
1. Output Connections- Delta 4 Wire
2. Termination resistor CAN-R, Flip Dip Switch 1 to ON Position (down)
3. System Bus Communication Cable
4. Only supports three-phase four wire connection

Table of Contents