EasyManua.ls Logo

DGSHAPE DE-3 - Workpiece Table Installation Area Dimensional Drawing; Laser Pointer Irradiation Area

DGSHAPE DE-3
159 pages
Print Icon
To Next Page IconTo Next Page
To Next Page IconTo Next Page
To Previous Page IconTo Previous Page
To Previous Page IconTo Previous Page
Loading...
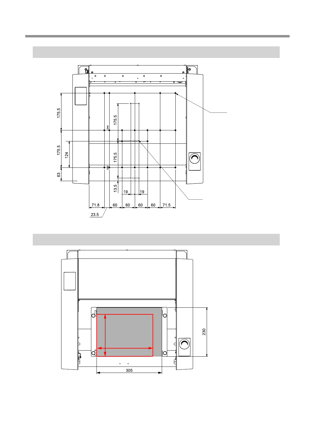
Workpiece Table Installation Area Dimensional Drawing
Unit: mm
21×M5
4×M4
Laser Pointer Irradiation Area
Unit: mm
( 260 mm )
( 197 mm )
Y operating range
/Workpiece table
dimensions
X operating range/Workpiece table dimensions
Laser pointer
irradiation area
Machine Specications
155
Chapter 6 Appendix

Table of Contents

Other manuals for DGSHAPE DE-3