EasyManua.ls Logo

ECKELMANN Case Controller UA 4 E Series - Page 68

ECKELMANN Case Controller UA 4 E Series
466 pages
Print Icon
To Next Page IconTo Next Page
To Next Page IconTo Next Page
To Previous Page IconTo Previous Page
To Previous Page IconTo Previous Page
Loading...
Firmware V3.13
21.04.2021
68/466
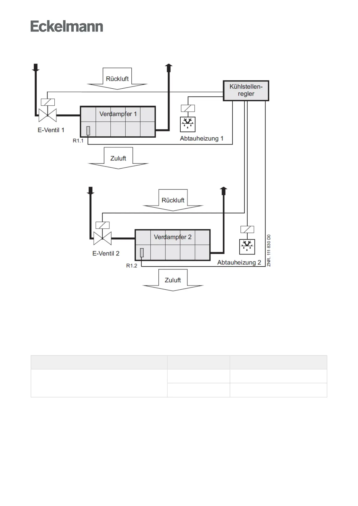
In two-zone operation, the sensors R1.1 and R1.2 are used for the defrosting.
R1.1: Defrost sensor (terminals Z31/Z32)
R1.2: Defrost sensor (terminals Z81/Z82)
E-valve 1: Relay for expansion valve 1 (terminals 23/24)
E-valve 2: Relay for expansion valve 2 (terminals 33/34)
Defrost heater 1: Relay for defrost heater 1 (terminals 43/44)
Defrost heater 2: Relay for defrost heater 2 (terminals 53/54)
Assignment of the sensors to the defrost relays
Optional not attached sensors are not used for switching the defrost relay.
Controller type Sensor Comment
UA 121 E, UA 131 E, UA 131 E LS, UA 141 E,
UR 141 NE, UR 141 TE, UK 100 E, KR 160 E
R1.1 Defrost relay 1
R1.2 Defrost relay 2

Table of Contents

Related product manuals