EasyManua.ls Logo

Extra 300LX - Page 478

Extra 300LX
515 pages
Print Icon
To Next Page IconTo Next Page
To Next Page IconTo Next Page
To Previous Page IconTo Previous Page
To Previous Page IconTo Previous Page
Loading...
1
1
2
2
3
3
4
4
D D
C C
B B
A A
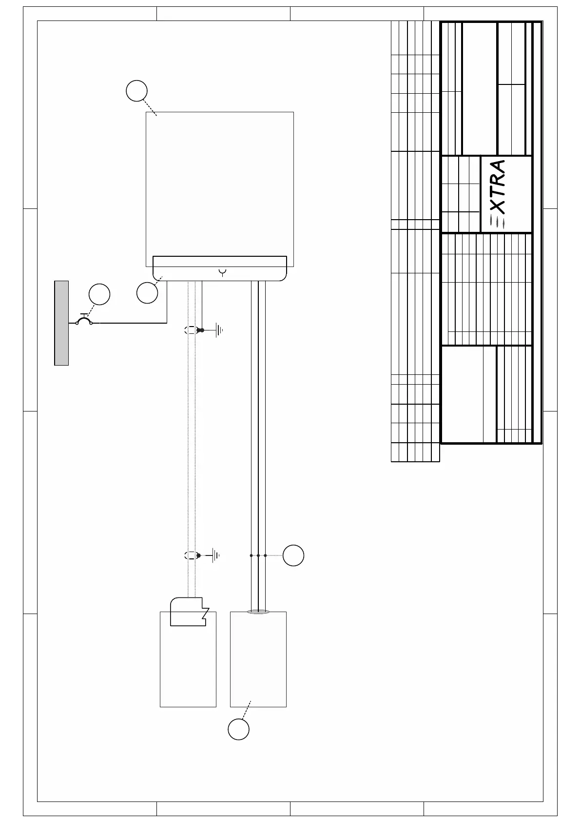
EA 300
FUEL FLOW FS-450
MAIN BUS
GARMIN GNC-420/GNS-430/GNS-530
EA-93102.33
31.01.06 HW
P4001
2A
FUEL FLOW
RS 232 Out 1
RS 232 In 1
56
57
ws
bl
ws
bl
9
6
RS 232 In
RS 232 Out
FS-450
2 Ground
1
3
14-28 VDC
Left (and Right) Transduser Power
5 Left and Right Transducer Ground
8
7
Right Fuel Flow Signal
Left Fuel Flow Signal
A4
1 1
rot
schwarz
weiß weiß
blau
orange
schwarz
rot
rot
weiß
blau
orange
FLOW SENSOR
GPS
EA300942
= ==
0204 03 BenennungNr01 Teilekennzeichen ZF Werkstoff Abmessungen Menge GewichtEinheit MaWi-Nr.
1
2
3
30611
201-B
4
5
FLOW SENSOR
FUEL FLOW INDICATOR FS-450 450000
CONNECTOR KIT
CIRCUIT BREAKER 2A
FE4086
31508
in Pos. 1
7277-2-2
D 436-37SPLICE
1
1
1
1
3
1
4
2
3
5
OPTION
FUEL FLOW INDICATOR
0.085
0.114
Die Gültigkeitszuordnung
von Version zu
dem jeweiligen Fertigungsauftrag
zu entnehmen.
Zuordnung links / rechts wird mit
*/* in allen Feldern angegeben.
04
03
02
01
Ver. Bezeichnung
Nr.: Änderung/Mod. Nr.: Datum Name
Letzte Bearbeitung:
Datum Name
Bearb.:
Gepr.:
Maßstab
SI.-Klasse
Oberflächenschutz
Projektion
Freimaßtoleranz
Oberfläche
Schutzvermerk nach DIN 34 beachten.
EDV-Kennung:
auf
Blatt von
Schwarze Heide 21
46569 Hünxe, Germany
Gepr.:
Flugzeugbaureihe
ist der Bauakte bzw.

Table of Contents

Related product manuals