EasyManua.ls Logo

SCHWIND Amaris 500E - Figure 5-3: AMARIS; AMARIS 750 S; AMARIS 1050 RS with Swivelling Patient Bed- Standard Position

Default Icon
201 pages
Print Icon
To Next Page IconTo Next Page
To Next Page IconTo Next Page
To Previous Page IconTo Previous Page
To Previous Page IconTo Previous Page
Loading...
USER MANUAL (Instruction for Use) SW 6.1
Installation
Version 6.1.6 dated 2020-01-31 EN Page 76 of 201
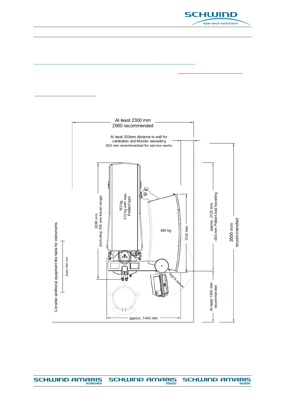
Room Dimensions - AMARIS / AMARIS 750S / AMARIS 1050RS
All SCHWIND AMARIS excimer laser(s) are designed with a traversable (swivelling) bed for
optionally use with other medical devices. The mechanical end stop for out-swivelling the patient
bed can be set in steps of 10°, beginning at 30°, up to 90°.
AMARIS Standard Position
Min. room size: 2300 mm x 3500 mm (approx. 8.0 m²)
Recommended room size: 2900 mm x 3500 mm (approx.10.15 m²
Figure 5-3: AMARIS / AMARIS 750S / AMARIS 1050RS with swivelling patient bed– standard position
Drawing is not shown in actual size

Table of Contents

Related product manuals