EasyManua.ls Logo

Siemens FS20 - Page 337

Siemens FS20
354 pages
To Next Page IconTo Next Page
To Next Page IconTo Next Page
To Previous Page IconTo Previous Page
To Previous Page IconTo Previous Page
Loading...
Mounting and installation of fire terminal (Touch)
Installation in rear panel (FT2080) FHA2039
7
337 |
354
Building Technologies
008851_s_en_
--
Fire Safety
2016
-
-
27
Wiring the fire terminal (Touch)
When installing in a desktop that is thicker than 33 mm, the cables must be routed
through the rectangular openings of the rear panel (FT2080), and not through the
round cable breakthroughs.
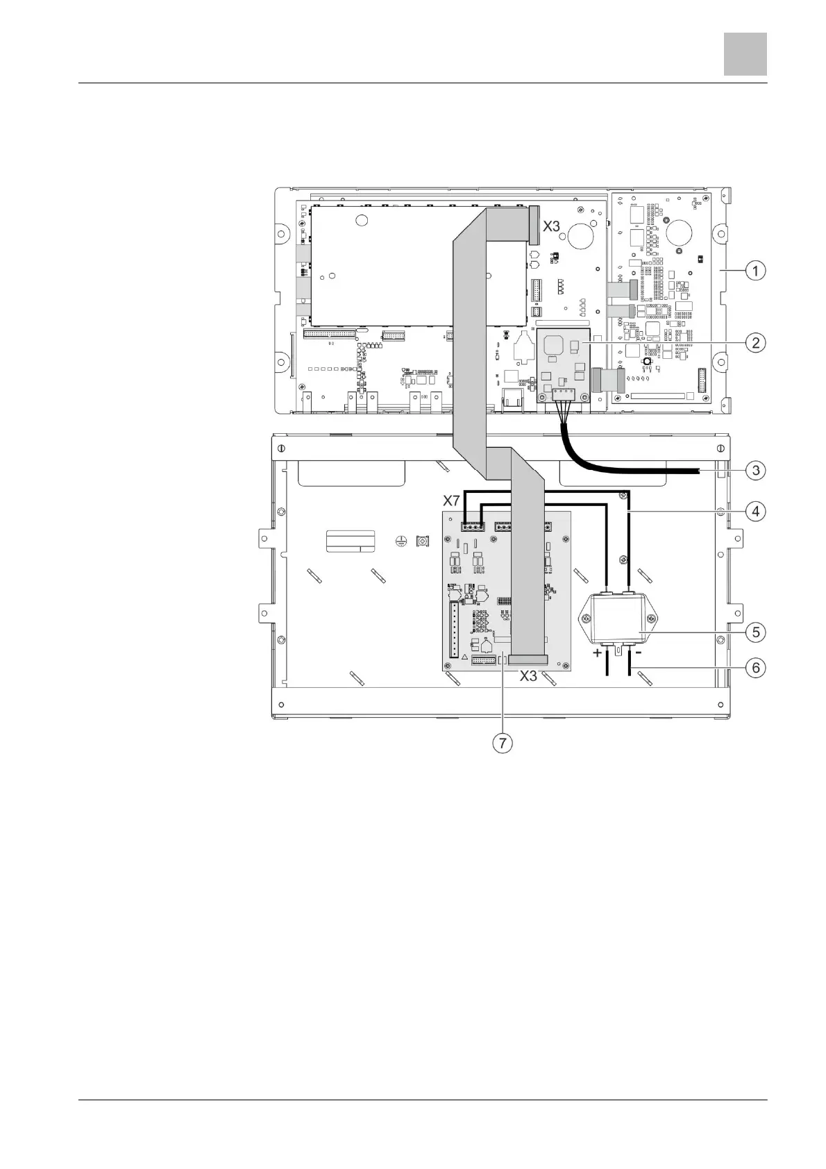
Figure 195: Wiring view of the fire terminal (Touch) in the rear cover (FT2080)
1 Fire terminal (Touch) FT2080
2 Network module (FCnet/SAFEDLINK) FN2001
3 FCnet connection cable
4 Prefabricated cable for supply connection to X7
5 EMC filter
6 Input for DC 24 V system supply to EMC filter
7 Fire terminal board FTI2001

Table of Contents

Other manuals for Siemens FS20

Related product manuals