EasyManua.ls Logo

WinGD X72 - Page 368

WinGD X72
514 pages
Print Icon
To Next Page IconTo Next Page
To Next Page IconTo Next Page
To Previous Page IconTo Previous Page
To Previous Page IconTo Previous Page
Loading...
Operation55511/A1
Winterthur Gas & Diesel Ltd.
2/ 2
I
5
3
1
2
7
WCH02234
WCH02234
3
6
WCH02235
4
I
I
I
5
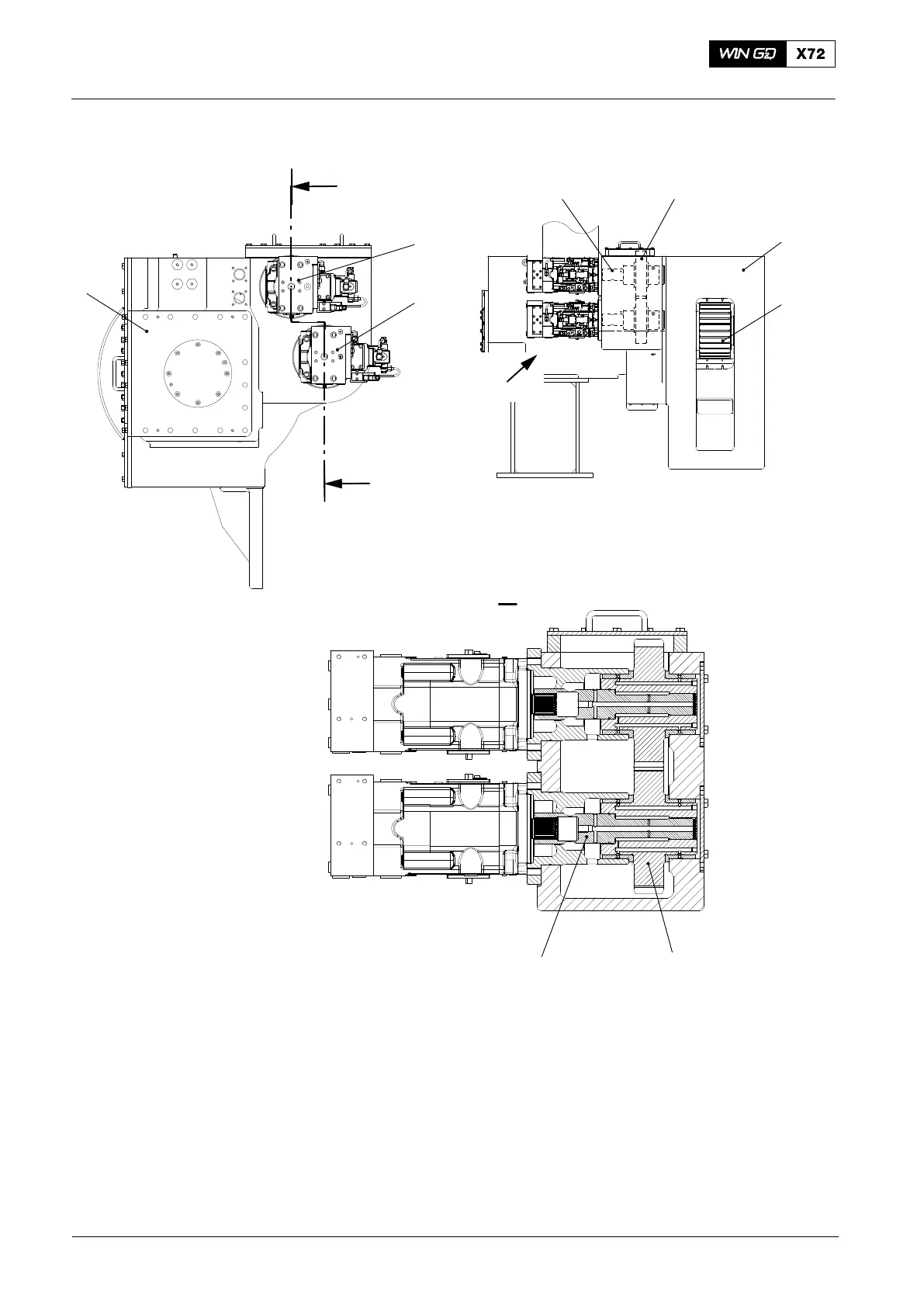
Fig. 2: Servo Oil Pumps Operation
1 Servo oil pump (20-5551_E0_1) 5 Pinion
2 Servo oil pump (20-5551_E0_2) 6 Intermediate wheel (supply unit)
3 Supply unit 7 Shaft
4 Safety device (waisted part)
2014
Servo Oil Pump

Table of Contents

Other manuals for WinGD X72

Related product manuals