EasyManua.ls Logo

Bentel Security FireClass 200 - Page 15

Bentel Security FireClass 200
100 pages
Print Icon
To Next Page IconTo Next Page
To Next Page IconTo Next Page
To Previous Page IconTo Previous Page
To Previous Page IconTo Previous Page
Loading...
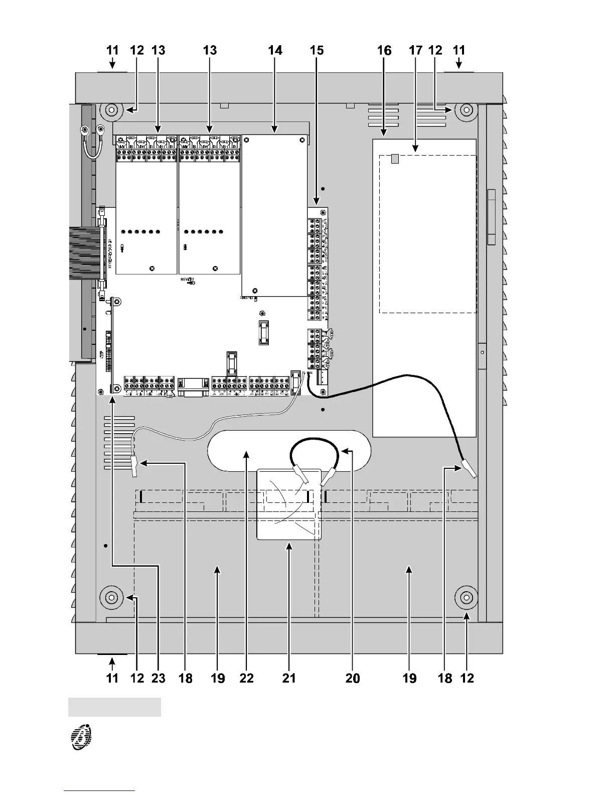
Figure 3 Main unit parts (internal)
PARTS IDENTIFICATION 15

Table of Contents

Related product manuals