EasyManua.ls Logo

Fiat TIPO 2016 - Schema Elettrico Sollevatore Finestrino - Allestimento Low

Fiat TIPO 2016
Print Icon
To Next Page IconTo Next Page
To Next Page IconTo Next Page
To Previous Page IconTo Previous Page
To Previous Page IconTo Previous Page
Loading...
Tutti i diritti riservati. La divulgazione e riproduzione di questa guida, in tutto o in parte, sotto qualunque forma è
severamente proibita.
FIAT TIPO -33- ED. 0.0
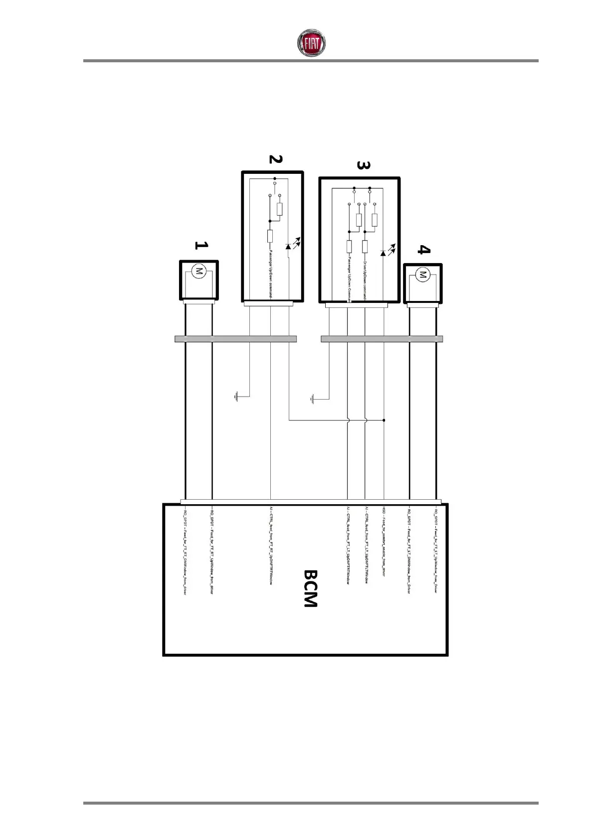
I motorini elettrici dei meccanismi di movimento del finestrino posteriore vengono gestiti da due relè
allinterno di ciascuna unità interruttori. Lalimentazione viene inviata direttamente dal BCM. Quando
viene richiesto il movimento SU/GIÙ, il relè correlato verrà chiuso per inviare lalimentazione al
motorino stesso.
Schema elettrico sollevatore finestrino - Allestimento Low
Legenda:
1. Attuatore sollevatore finestrino laterale sportello passeggero
2. Interruttore di sollevamento finestrino anteriore DX
3. Comandi sportello guidatore
4. Attuatore sollevatore finestrino laterale sportello guidatore

Table of Contents

Related product manuals