EasyManua.ls Logo

Juniper EX2200 - Chapter 9 Switch; Figure 24: Measurements for Installing Mounting Screws for EX2200-C

Juniper EX2200
238 pages
Print Icon
To Next Page IconTo Next Page
To Next Page IconTo Next Page
To Previous Page IconTo Previous Page
To Previous Page IconTo Previous Page
Loading...
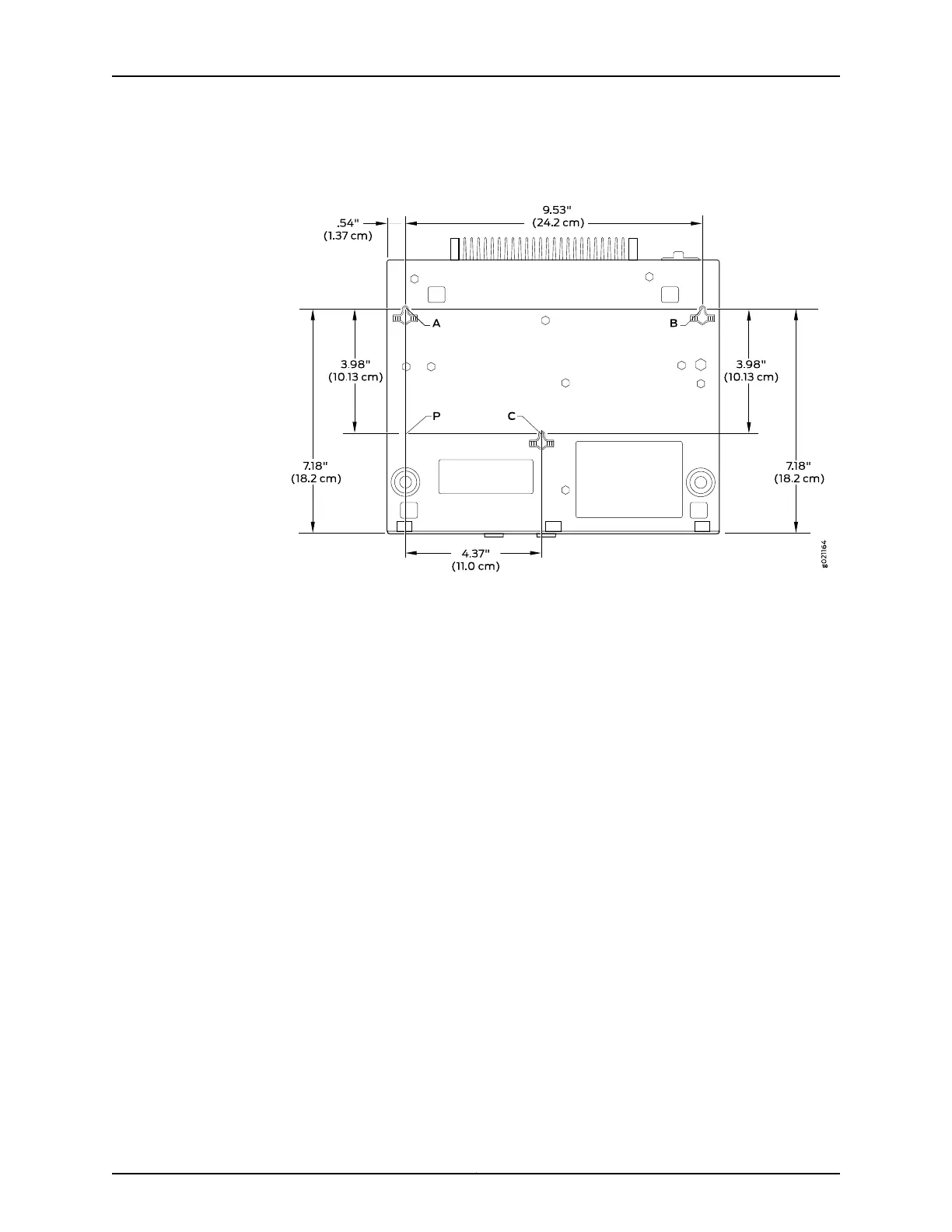
Figure 24: Measurements for Installing Mounting Screws for EX2200-C
Switch
a. Drill hole A and install a mounting screw.
b. Drill hole B 9.52 in. (22.1 cm) on a level line from hole A and install a mounting
screw.
c. Mark a point P 3.98 in. (10.13 cm) on a plumb line down from hole A.
d. From point P 4.37 in. (11.0 cm) on a level line drill hole C and install a mounting
screw.
2. Tighten the screws only part way in, leaving about 1/4 in. (6 mm) distance between
the head of the screw and the desk.
3. Place the switch on the mounting screws, and slide it forward or backward until it
locks in place. See Figure 25 on page 94.
93Copyright © 2015, Juniper Networks, Inc.
Chapter 8: Installing the Switch

Table of Contents

Other manuals for Juniper EX2200

Related product manuals