EasyManua.ls Logo

KSB PumpDrive 2 - Page 42

KSB PumpDrive 2
212 pages
Print Icon
To Next Page IconTo Next Page
To Next Page IconTo Next Page
To Previous Page IconTo Previous Page
To Previous Page IconTo Previous Page
Loading...
7 Installation at Site
42 of 212
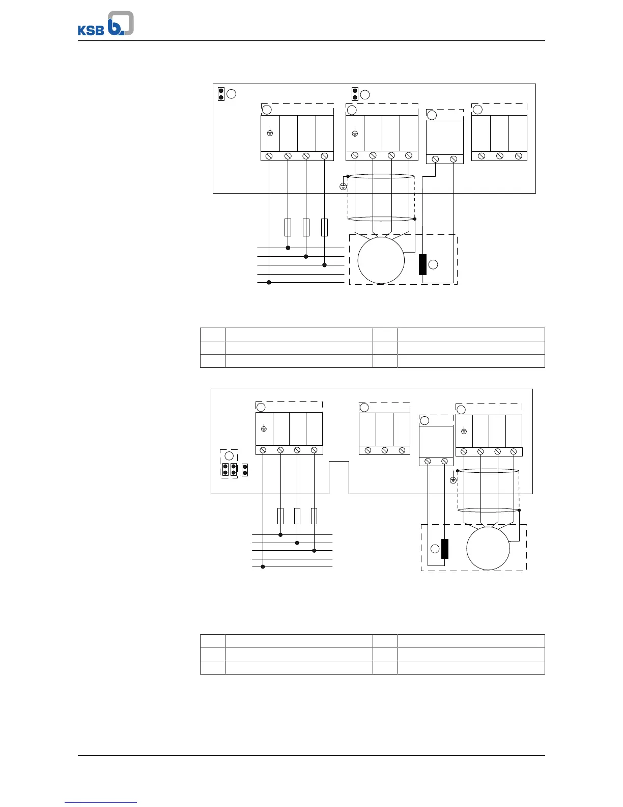
PumpDrive 2
Size B
L1 L2 L3
LINE
PE U V W
MOTOR
PTC
MOTOR
PE
-
L1
L2
L3
N
PE
1
2
3
4
5
M
3~
BR
+
6
6
Fig.22: Establishing the power supply and motor connections, size B
Mains connection Motor connection
PTC connection Braking resistor
Motor PTC Jumper for IT mains
Size C
L1 L2 L3
LINE
PE U V W
MOTOR
PTC
MOTOR
PE
-
L1
L2
L3
N
PE
1
2
3
4
5
M
3~
BR
+
6
Fig.23: Establishing the power supply and motor connections, size C
Mains connection Motor connection
PTC connection Braking resistor
Motor PTC Jumper for IT mains

Table of Contents

Other manuals for KSB PumpDrive 2

Related product manuals