EasyManua.ls Logo

Kyocera ECOSYS M3040dn - 40 Ppm Model

Kyocera ECOSYS M3040dn
483 pages
To Next Page IconTo Next Page
To Next Page IconTo Next Page
To Previous Page IconTo Previous Page
To Previous Page IconTo Previous Page
Loading...
2NM/2NX/2NY/2NZ/2P0/2P6
1-5-42
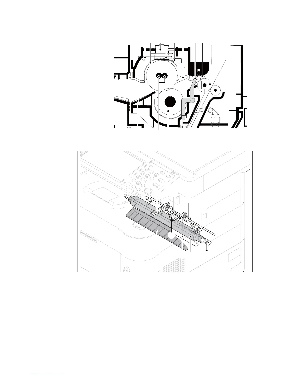
(2) 40 ppm model
Figure 1-5-69
Figure 1-5-70
84 5 9710 3
611 2
1
[Component formation]
1. Heat roller
2. Fuser heater (FUH)
3. Fuser thermostat (FUTS)
4. Fuser thermistor (FUTH)
5. Separators
6. Press roller
7. Actuater
(Eject sensor (ES))
8. Fuser eject roller
9. Fuser eject pulley
10. Fuser thermistor (FUTH2)
11. Fuser pre guide
4
5
8
9
7
2
10
3
6 1
11

Table of Contents

Other manuals for Kyocera ECOSYS M3040dn

Related product manuals