EasyManua.ls Logo

LAR Process Analysers QuickTOC purity - Wall Mounting

LAR Process Analysers QuickTOC purity
196 pages
Print Icon
To Next Page IconTo Next Page
To Next Page IconTo Next Page
To Previous Page IconTo Previous Page
To Previous Page IconTo Previous Page
Loading...
54 User Manual QuickTOC
®
purity
ATEX 2 04E3920
4 Installation
4.3 Mounting the Analyser On-Site LAR | PROCESS ANALYSERS AG
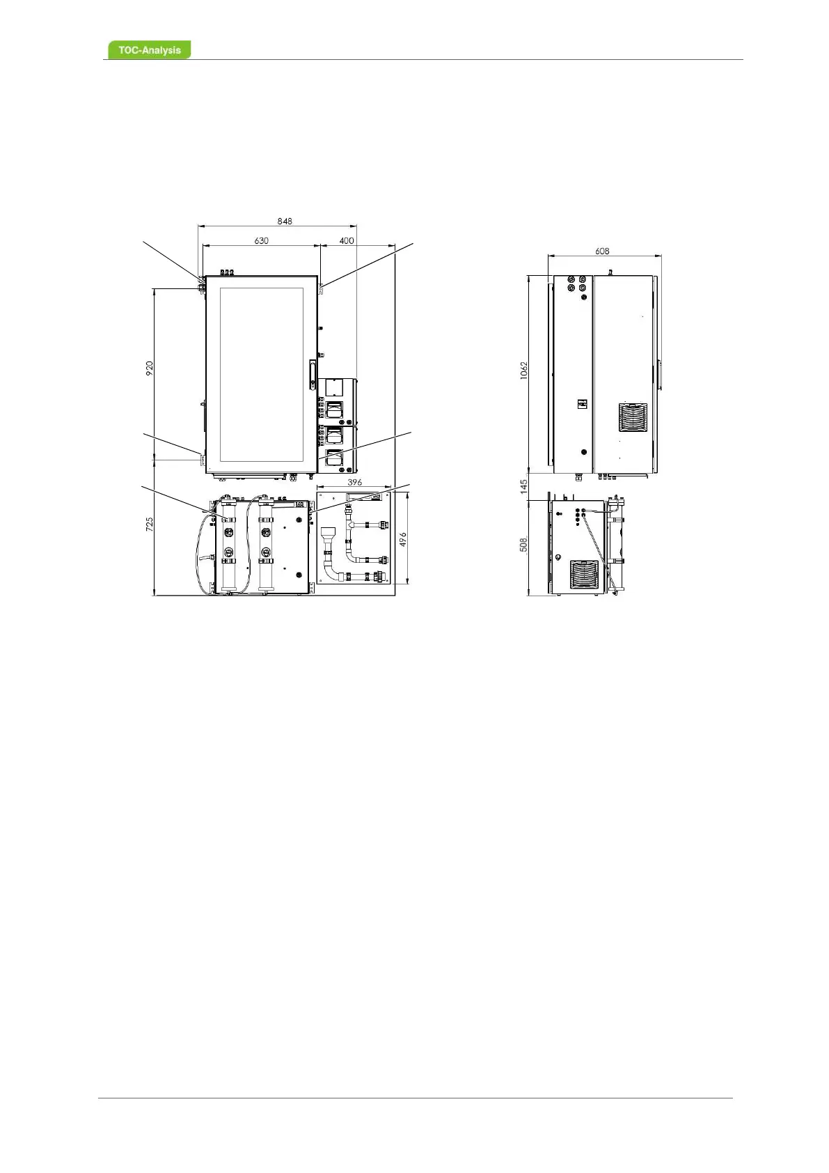
4.3.2 Wall Mounting
Observe the following mounting dimensions:
Minimum 1.430 x 1.760 x 1.210 mm (W x H x D)
M1 - M4: Mounting points for analyser
Q1 - Q2: Mounting points for carrier gas conditioning
Fig. 34: Wall mounting of the QuickTOC
®
purity
with carrier gas conditioning and FlowSampler
®
(Ex-
ample)
M2
M3
M4
Q1
Q2
M1

Table of Contents