EasyManua.ls Logo

Micros Systems PCWS 2015 - LCD Pole Display

Micros Systems PCWS 2015
178 pages
Print Icon
To Next Page IconTo Next Page
To Next Page IconTo Next Page
To Previous Page IconTo Previous Page
To Previous Page IconTo Previous Page
Loading...
A-6 PCWS 2015 Setup Guide - 2nd Edition
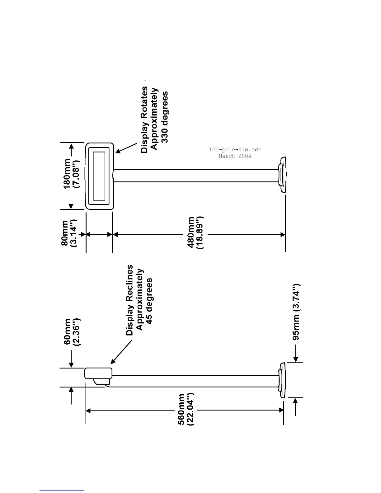
Equipment Dimensions
LCD Pole Display
LCD Pole Display

Table of Contents