EasyManua.ls Logo

Servotronix CDHD Series - Shielding and Bonding

Servotronix CDHD Series
292 pages
Print Icon
To Next Page IconTo Next Page
To Next Page IconTo Next Page
To Previous Page IconTo Previous Page
To Previous Page IconTo Previous Page
Loading...
CDHD Drive Setup
User Manual 73
ground. Provide an elect rical connect ion across the ent ire back surface of the
drive panel. Electrically-conductive panels such as aluminum or galvanized steel
are recommended. For painted and other coated m etal panels, rem ove all
coating behind the drive. The objective is to provide an extremely low im pedance
pat h between the filt ers, drives, power supplies, and earth ground for high-
frequency signals that might cause EMI . Use a flat braid or copper bus bar to
achieve high-frequency grounding. Use the shortest braid possible when
connecting high frequency grounds.
Ensure good connections between the cabinet components. Connect the back
panel and cabinet door to the cabinet body using several conduct ive braids.
Never rely on hinges or m ounting bolts for ground connections. Ensure good
ground connection from cabinet to proper earth ground. Ground leads should be
the sam e gauge as the leads to main power or one gauge smaller.
The host com put er m ust also be properly grounded.
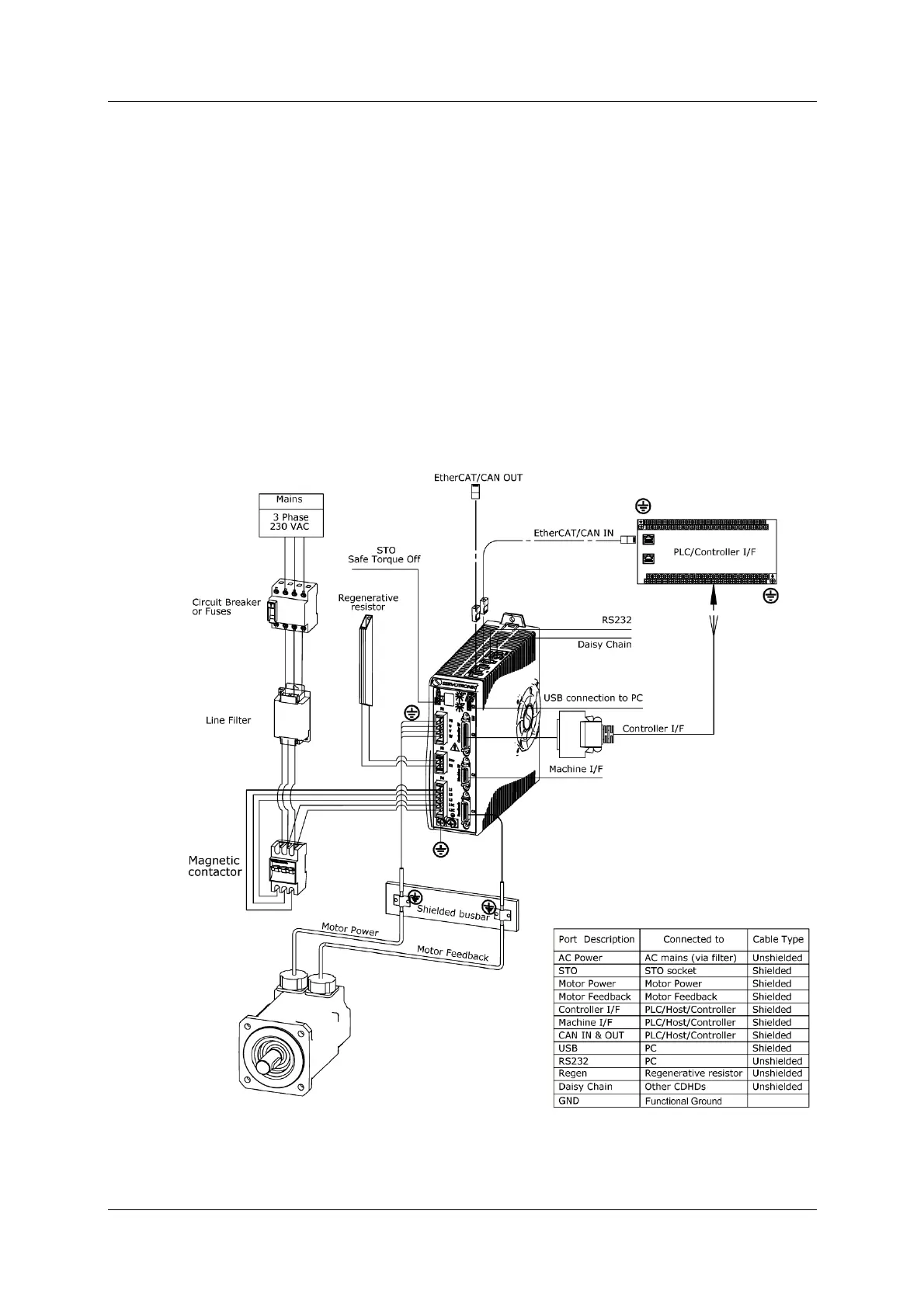
5 .3 .3 Shielding and Bon ding
Figur e 5 - 3 . CDHD Sh ie lding an d Bon ding

Table of Contents

Other manuals for Servotronix CDHD Series

Related product manuals