EasyManua.ls Logo

Siemens SINAMICS S120 - Dimension Drawing

Siemens SINAMICS S120
570 pages
To Next Page IconTo Next Page
To Next Page IconTo Next Page
To Previous Page IconTo Previous Page
To Previous Page IconTo Previous Page
Loading...
Line Modules Booksize
3.8 Smart Line Modules (5 kW und 10 kW) with external air cooling
Booksize power units
Manual, (GH2), 06/2008, 6SL3097-2AC00-0BP6
303
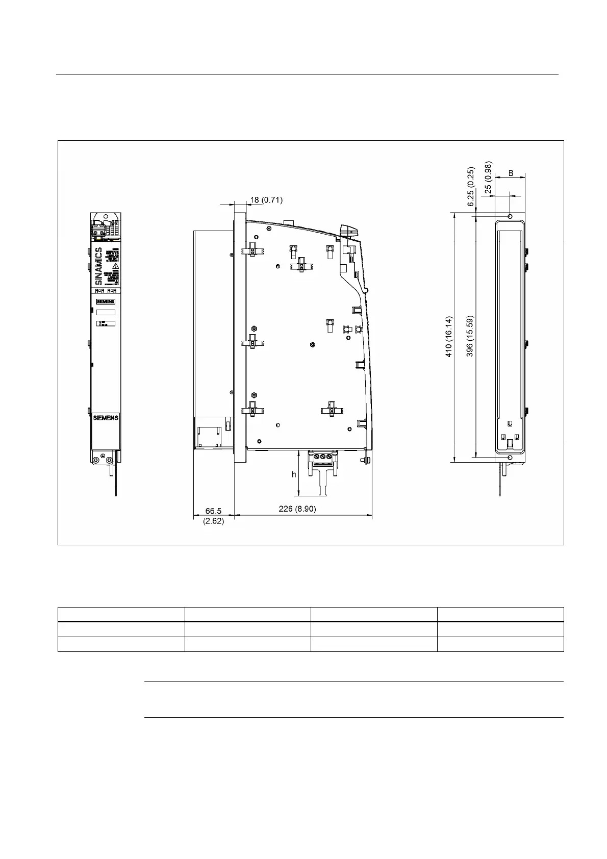
3.8.4 Dimension drawing
Figure 3-89 Dimension drawing of Smart Line Modules 5 kW and 10 kW with external air cooling, all data in mm and
(inches)
Table 3-65 Dimensions of Smart Line Module (5 kW and 10 kW) with external air cooling
Line module type Order number W [mm] (inches) h [mm] (inches)
5 kW 6SL3131-6AE15-0AAx 50 (1.97) 75 (2.95)
10 kW 6SL3131-6AE21-0AAx 50 (1.97) 75 (2.95)
Note
The shield connecting plate is part of the scope of supply of the 50 mm Smart Line Module.

Table of Contents

Other manuals for Siemens SINAMICS S120

Related product manuals