EasyManua.ls Logo

Siemens SINAMICS S120 - Dimension Drawings

Siemens SINAMICS S120
570 pages
To Next Page IconTo Next Page
To Next Page IconTo Next Page
To Previous Page IconTo Previous Page
To Previous Page IconTo Previous Page
Loading...
Line Connection Booksize
2.9 Active Interface Modules internal air cooling
Booksize power units
Manual, (GH2), 06/2008, 6SL3097-2AC00-0BP6
87
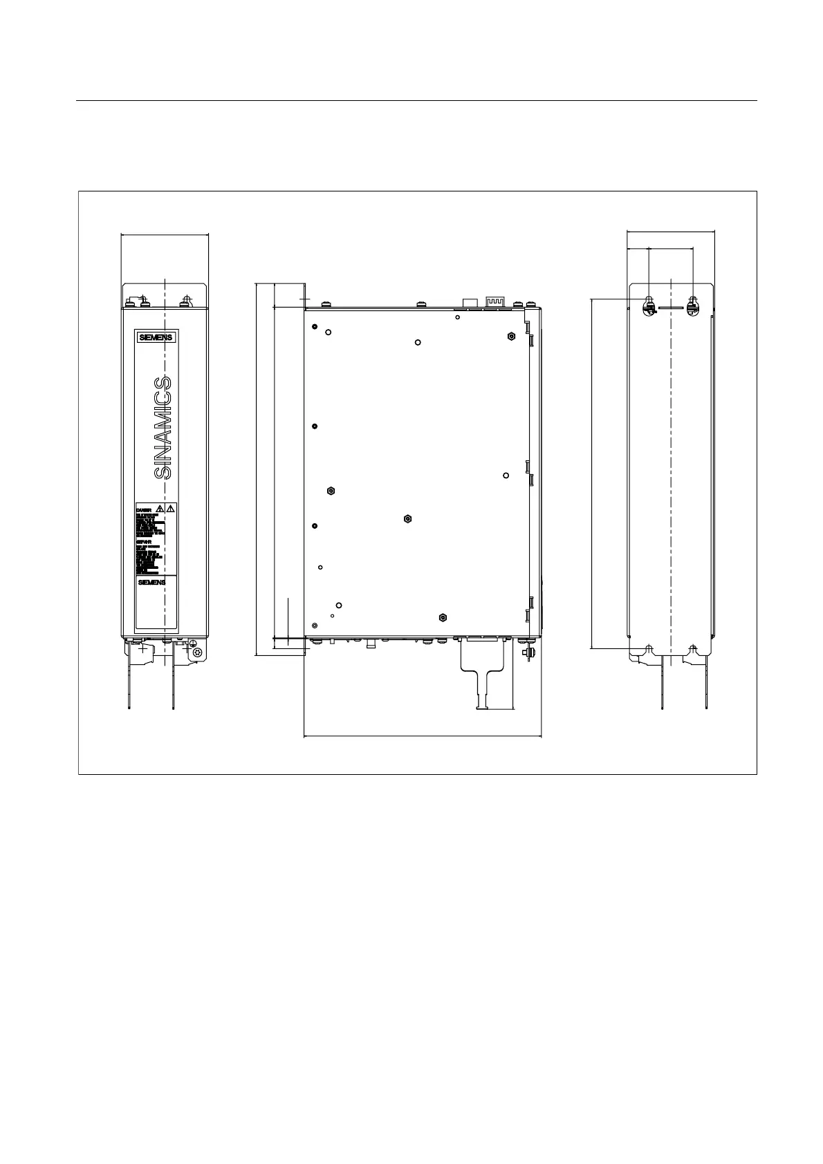
2.9.4 Dimension drawings














Figure 2-27 Dimension drawing: Active Interface Module 16 kW, all dimensions in mm and (inches)

Table of Contents

Other manuals for Siemens SINAMICS S120

Related product manuals