EasyManua.ls Logo

Siemens SINAMICS S120 - Dimension Drawings

Siemens SINAMICS S120
570 pages
To Next Page IconTo Next Page
To Next Page IconTo Next Page
To Previous Page IconTo Previous Page
To Previous Page IconTo Previous Page
Loading...
Line Modules Booksize
3.4 Basic Line Modules with internal air cooling
Booksize power units
Manual, (GH2), 06/2008, 6SL3097-2AC00-0BP6
215
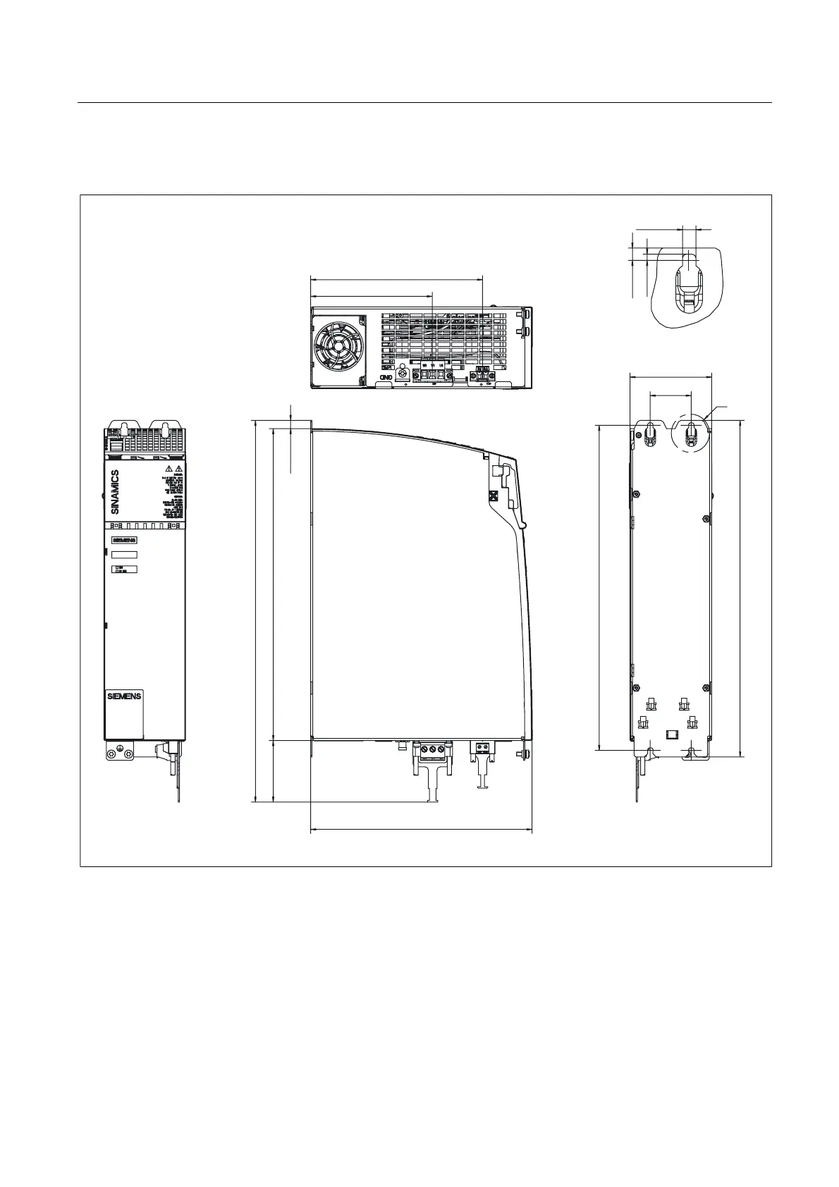
3.4.4 Dimension drawings















$
$
Figure 3-39 Dimension drawing: Basic Line Module 20 kW with internal air cooling, all dimensions in mm and (inches)

Table of Contents

Other manuals for Siemens SINAMICS S120

Related product manuals