EasyManua.ls Logo

Siemens SINAMICS S120 - Dimension Drawings

Siemens SINAMICS S120
570 pages
To Next Page IconTo Next Page
To Next Page IconTo Next Page
To Previous Page IconTo Previous Page
To Previous Page IconTo Previous Page
Loading...
Line Modules Booksize
3.3 Active Line Modules with external air cooling
Booksize power units
184 Manual, (GH2), 06/2008, 6SL3097-2AC00-0BP6
3.3.4 Dimension drawings
F


K



%
E

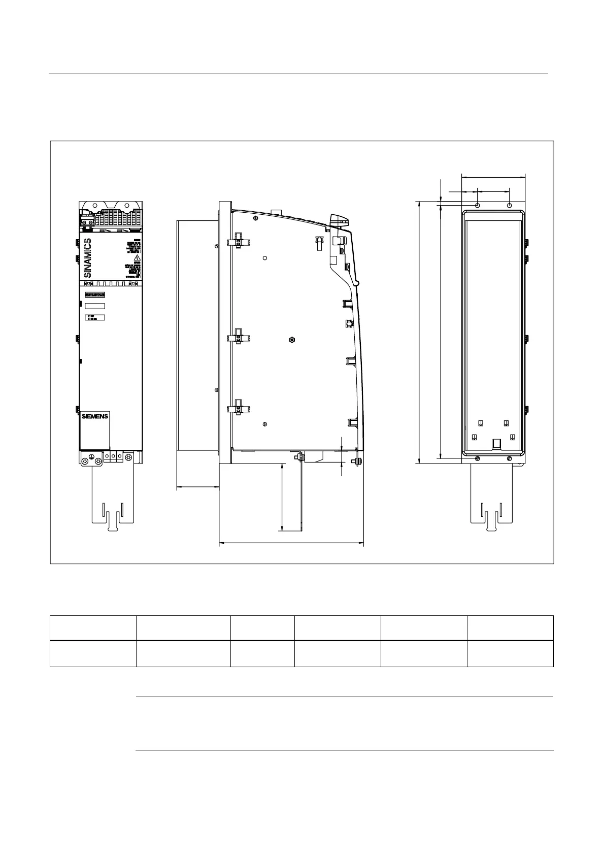
Figure 3-18 Dimension drawing of Active Line Module 16 kW with exernal air cooling, all data in mm and (inches)
Table 3-18 Dimensions of Active Line Module with external air cooling (16 kW)
Line module type Order number W [mm]
(inches)
b [mm] (inches) c [mm] (inches) h [mm] (inches)
16 kW 6SL3131-7TE21-
6AAx
100 (3.94) 50 (1.97) 66.5 (2.62) 18 (0.71)
Note
The shield connecting plate is part of the scope of supply for a 100 mm Line Module.
For more information, see "Accessories".

Table of Contents

Other manuals for Siemens SINAMICS S120

Related product manuals