EasyManua.ls Logo

Siemens SINAMICS S120 - Motor;Brake Connection

Siemens SINAMICS S120
570 pages
To Next Page IconTo Next Page
To Next Page IconTo Next Page
To Previous Page IconTo Previous Page
To Previous Page IconTo Previous Page
Loading...
Motor Modules Booksize
4.3 Motor Module with external air cooling
Booksize power units
350 Manual, (GH2), 06/2008, 6SL3097-2AC00-0BP6
;;
'&1
'&3
'&1
'&3
8
9
%5
:
%5
;
a
0
(
;

5($'<
'&/,1.
/('V
7HPS
;
7HPS
(30
(39
;


˽
˽
0RWRU0RGXOH
0
0

9MXPSHU
)DQ
'5,9(&/L4VRFNHW
'5,9(&/L4VRFNHW
'5,9(&/L4VRFNHW
5HTXLUHGIRU6DIHW\
,QDGGLWLRQIRU0RWRU0RGXOHV$WR$
&RQWDFWWKURXJKWKHVKLHOGFRQQHFWLRQSODWH
9WRWKHQH[WPRGXOH
8
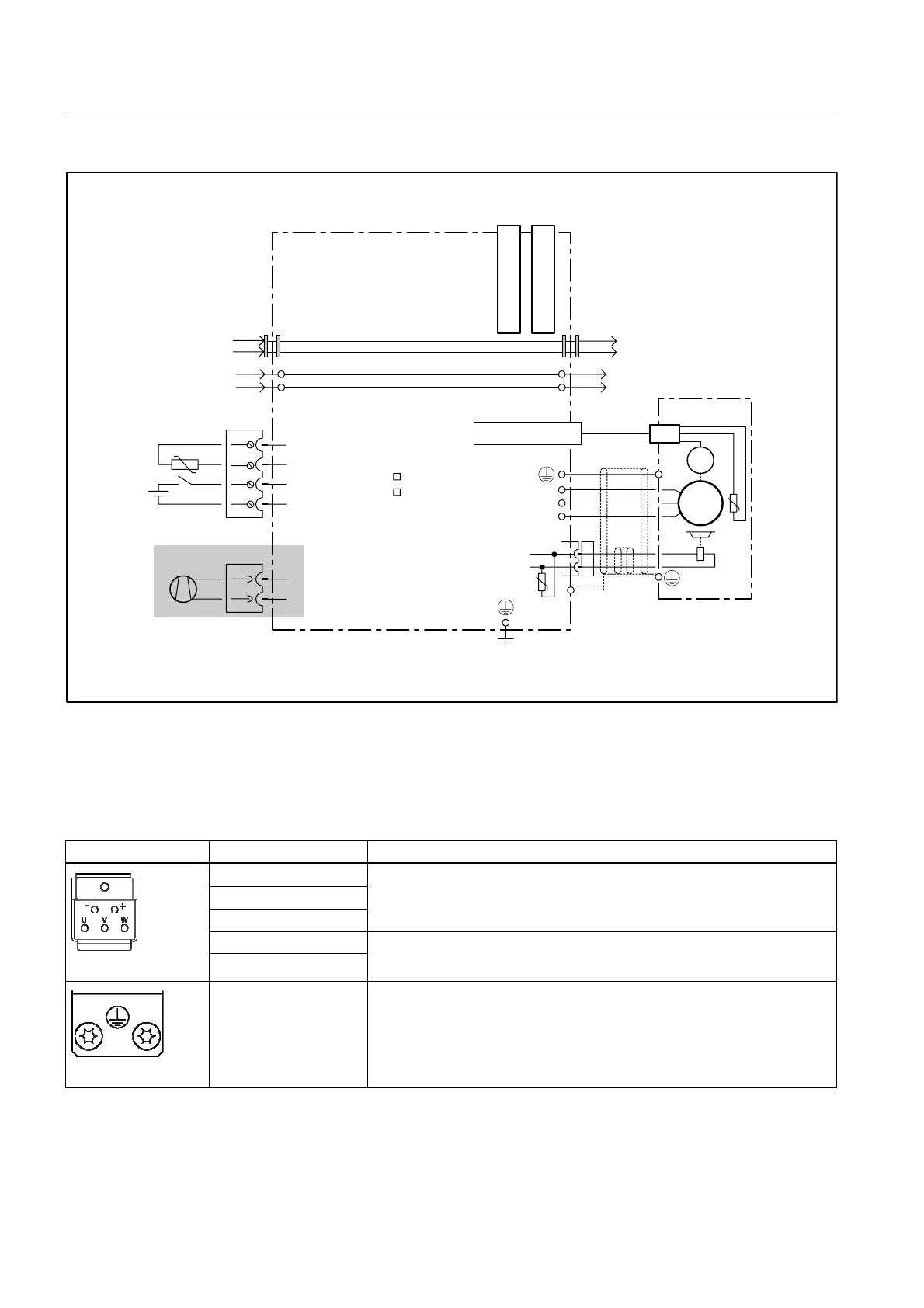
Figure 4-23 Example connection of Single Motor Modules 45 A to 200 A
4.3.3.3 Motor/brake connection
Table 4-13 Terminal block X1/X2 Motor Modules 3 A to 30 A and Double Motor Modules 3 A to 18 A
Terminal Technical specifications
U (U2)
V (V2)
W (W2)
Motor connection
+ (BR+)
- (BR-)
Brake connection
PE connection Threaded hole M5/3 Nm
1)
1)
for ring cable lugs to DIN 46234

Table of Contents

Other manuals for Siemens SINAMICS S120

Related product manuals