EasyManua.ls Logo

Siemens SINAMICS S120 - Page 412

Siemens SINAMICS S120
570 pages
To Next Page IconTo Next Page
To Next Page IconTo Next Page
To Previous Page IconTo Previous Page
To Previous Page IconTo Previous Page
Loading...
Booksize DC Link Components
6.1 Braking Modules
Booksize power units
412 Manual, (GH2), 06/2008, 6SL3097-2AC00-0BP6








[
[
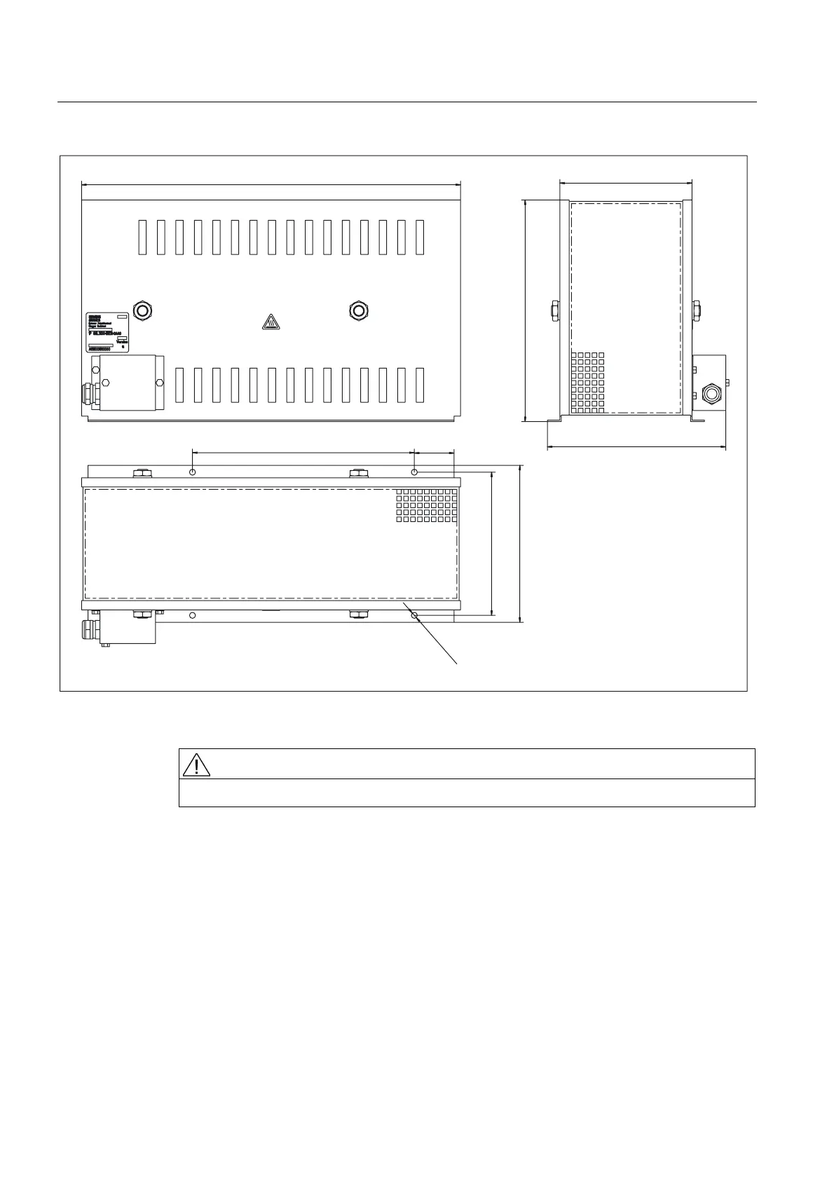
Figure 6-6 Dimension drawing: Braking resistor 1.5 kW/100 kW
CAUTION
The surface temperature of the braking resistors may exceed 80 °C.

Table of Contents

Other manuals for Siemens SINAMICS S120

Related product manuals