EasyManua.ls Logo

ABB ACS6000 - Page 271

ABB ACS6000
278 pages
Print Icon
To Next Page IconTo Next Page
To Next Page IconTo Next Page
To Previous Page IconTo Previous Page
To Previous Page IconTo Previous Page
Loading...
3BHS212794 E01 REV M ACS6000 USER MANUAL 271/278
10 PREVENTIVE AND CORRECTIVE MAINTENANCE
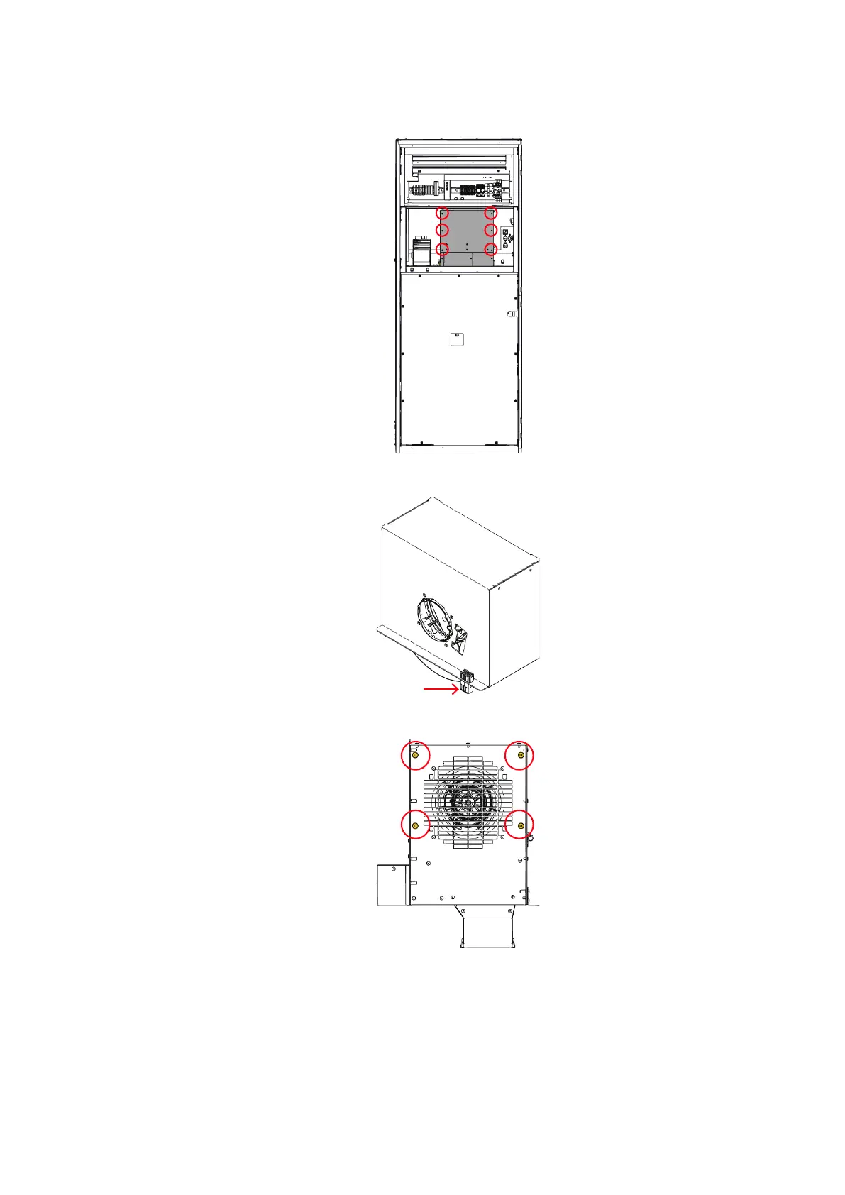
2. Remove the 6 screws from the fan cover and then remove the fan
cover.
3. Unplug the fan cables.
4. Remove the 4 fastening screws from the outside panel of the fan unit.

Table of Contents

Related product manuals