EasyManua.ls Logo

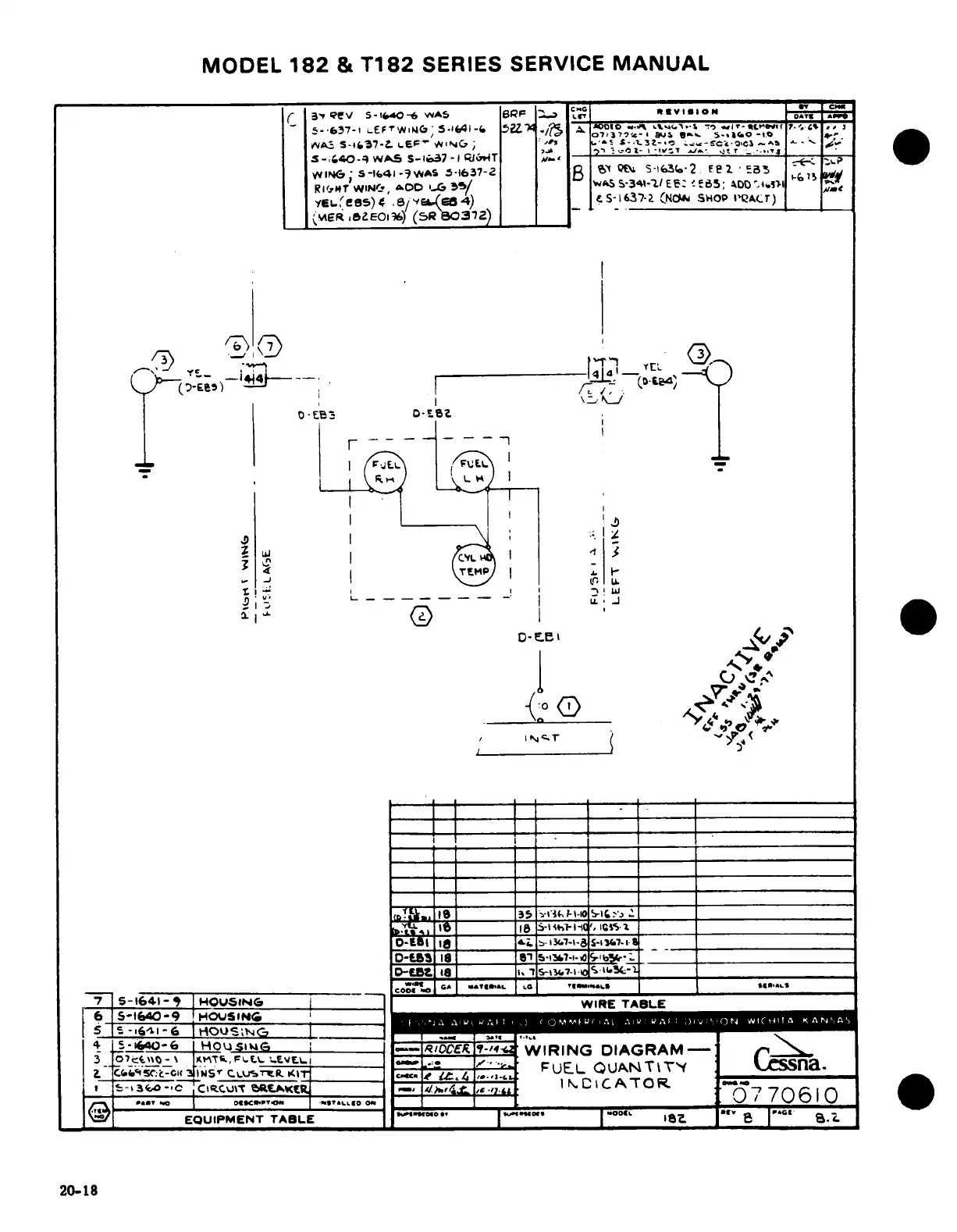
Cessna 182 1978 - Fuel Quantity Indicator

Cessna 182 1978
680 pages
Print Icon
To Next Page IconTo Next Page
To Next Page IconTo Next Page
To Previous Page IconTo Previous Page
To Previous Page IconTo Previous Page
Loading...
MODEL
182
&
T182
SERIES
SERVICE
MANUAL
(
3,
"ev
S-,IC4O-6
S
BRP
-
RviON .ay.
CO.
'
I-',637-1
£F-
iG 5.41-4
-52
?137Z-
.
. .
5--~lO-«tf
!-.-'
IN.A
S-1i37-L
LEF;'
,~Gr ;
WIN
"
'
-' '
-.
s2-.
6.-"c-.c
^
- -
.
'-
i F
o7,3,~i?-d
BJ
m ./c. t..
O
-,
.s0- »
1WAS
S-Io37
-I
NGT__/
.
WING;
S-1641-9
WAS
5-15637-2
B
Q
5-1t
S
3-2
e
I
E
a
w
Rl(.rTWINc.,
&OO
1S
o
5/
WAS
S-341-1/
E:
E5;
4
'00
W
Y..L'e85)
.,/vaEB4)
_
S-16i37-Z
CNO
SHOP
I'QLAT)
_M
ER
I2EOl6%)
(5R
80372)__
IDI \LW~~~~
r
i t
r
- -
-
--
7
0
-E.B3
WIRING
DIAGRAM-r
[
-
~.' v~' ."--G,"
1
V
L
>
"
3I.$t,'LL
.-
~
Krr'
FUE
QUANTtT'f
-s
-1l 3 ?47
i
-
I I I
!
I
-
1
_
QUIPMENT
T
I
D-E20t0-E8
_
_ _
CO-D;IO
(
,
GA.
.-
6
5
-
640-9
'
tHC!SIo
G
3 _'elo-lloJ
Xm
'E
sWIRING
DIAGRAM-
\
ts." c^'-cI,
35sr
UB. rI
T
- ---
I=7
,,.,.,
FUEL
QIJANTTY
Yna.
I
^-»3feO-C~pq>RcuTaRE^%CR
________
!=~
rf.^
IN.CiCA70R.
_ ^al
_ _
EQUIPMENT
TABLE.L
0..
I
.OD
8
|l
et
20-18

Table of Contents

Related product manuals