EasyManua.ls Logo

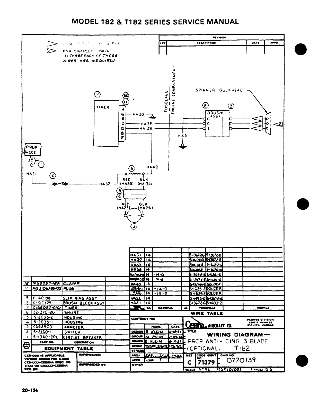
Cessna 182 1978 - Prof Anti-Icing 3 Blade

Cessna 182 1978
680 pages
Print Icon
To Next Page IconTo Next Page
To Next Page IconTo Next Page
To Previous Page IconTo Previous Page
To Previous Page IconTo Previous Page
Loading...
MODEL
182
&
T182
SERIES SERVICE
MANUAL
-L>
'
.-
(
-' -
LC
,
O
s-tCPRTsOm
|
*N|
^o
A
FCR
CO;0PLE-
-
N5L
3;
Th
EE
EACM
Cr
rTesc
A/iRES
AE
C
RgEO
I'Ei.
z
· ,
i
w 5°tSPINNER
IijLKMEAC
TIMER>
\>
I
I
0-=-
j
C
FtHA 3E-CC
C
C--
o
0 A---
39-
C
I
-
F
___A31 _J
J
P
_o
(t/ICE'
I
2C
0
@
HA40
JI
--
-
S
f'lMA3Z.--2
(MA33)
(HA
347
REr
6LK
(HA2l*A
24.)
HA30
14
1
.
_
4RA?~
_
14
.-.
3t S>-36,_-
14AM
_
14
____
_ S
-
-
______________
_
______________
_ 4_____
--
13k.O
5
-
-
--
~~_
____ __________
IaaPf~~~~tm~
"41
-/4-0
,-13-.i
.-.-
-
I2
NMS3057-m/A
CLAMP
140
1
4
_
.
1
_
-
II
MS31lOASO45S
P
_UG
14
-
14-0
_
S3CLCEfi
_ ~~~~_
_
_______
__ _
14 -14a
5-1632
0LER
_
)
C
4.o01
SLIP
RING
ASSY
A
-
_
_
.
C-4.C
171_
eRUS,
BLCCK
ASSY
l______ 14_
_
37-6
5-4.93-2
7
Cb1650OO-/fE
TIMER
WINE
e
GA
I
ATOmiL
L
tPowA
U
I S^
ERL-
6
22-37C-2
SHUNT
__
_
WIRE
TABLE
5_
S-2C35-Z
HOUSINCG__P
I
·
P
____PW___
Cs--
O
.
S-2C35-1
HOUSING
a
I.
fA«w«_
3
C66250
3
AuMETER
|
_-
O"
'
-to.
|AIRCAT
C
WH.
A.
2
5-2160-1
SWITCH
o____R
LEM
1- i-I
WIRING
DIAGRAM-
1
S-136C-ZCL
IRClUIT
BREAKER
~
A4
PAI.
»»
WIRING
DIAGRAM-
P,
*
Sr
.
L
^C.Lj-
o^L .;-,*:
FPRCP
ANTI-ICING
3
eLACE
EQUIPMENT
TABLE-
g
(CFTICNALL
T82_
sss
O"CA"
MA 1
1'c"
'OI
070Iw
___ju___
_
0-,
I
'
9w
u-m5@,,smN
,,
II
vO
-.
C
71379
0770
.a
. , .
L0.e
NNE
(S
o10100)
'I o,,
.I
20-134

Table of Contents

Related product manuals