EasyManua.ls Logo

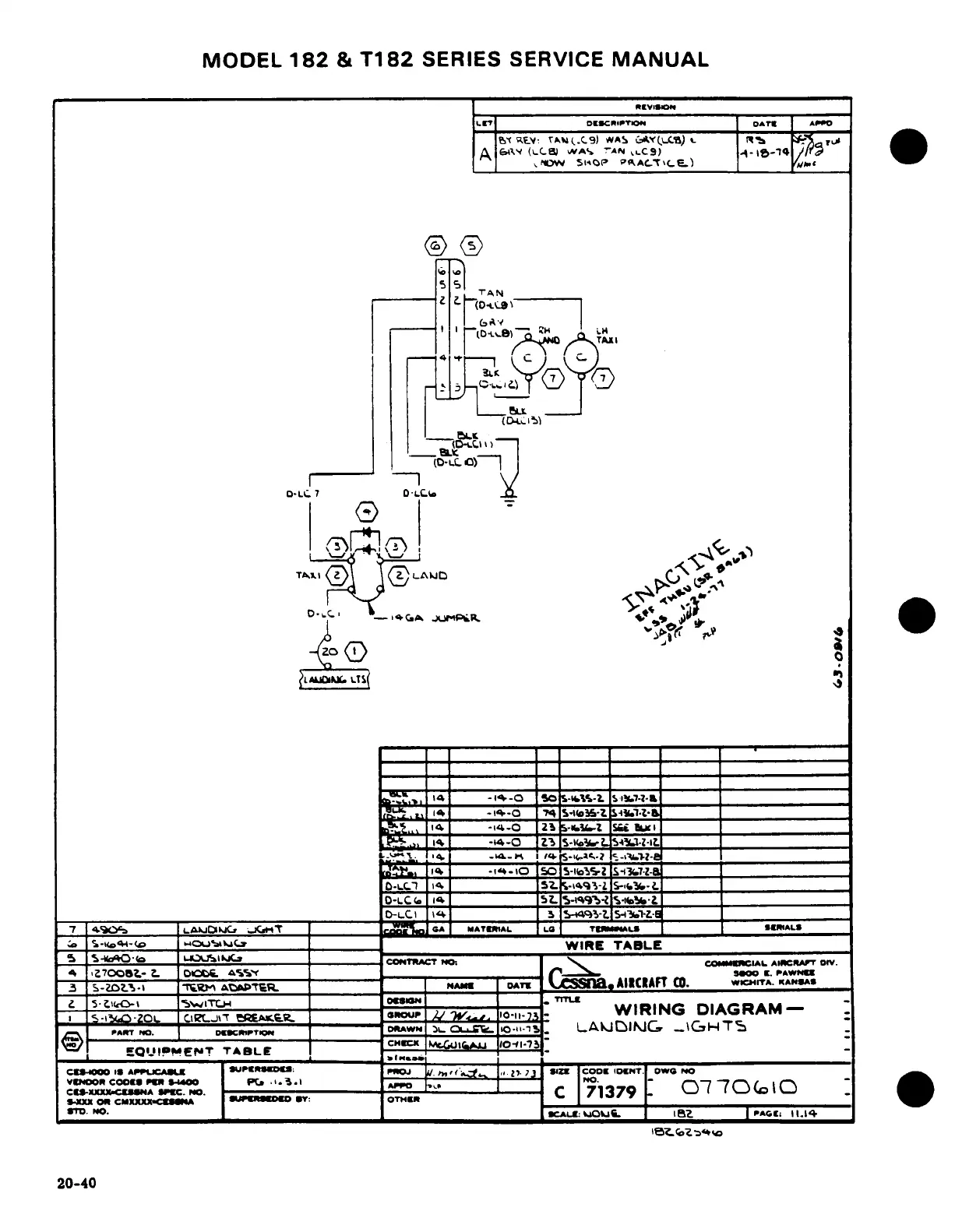
Cessna 182 1978 - Landing Lights

Cessna 182 1978
680 pages
Print Icon
To Next Page IconTo Next Page
To Next Page IconTo Next Page
To Previous Page IconTo Previous Page
To Previous Page IconTo Previous Page
Loading...
MODEL
182
&
T182
SERIES
SERVICE
MANUAL
mIVIsON
1
..
DEUCIPTrIOh
DOAT
AP
O
A
REV,
(Ua(..
WA
.
AN
I.C c9)
t-1
7A-
'L
C9
IW
)w
'OP
A.tAcT'.\e)
ILF-
A
5
5
N--
i i
-
(O--
91
IU
LL
(D4.
.
I
(
4
-iX4
O-LC
?
D-LC4.
®D-,C
-II-II
MAPiSR
A
.
C
14.
-'4-0
Z
ZSpIL1-L
5I7-
D
A
_ _
_
_
_ _
_
5
S
I
__
;
14
-14-0
il S-Itoit
54_
_-. ___. _
,_
_. _ _. _ _
m-C
i
.
_. _.t,_2,
c_.¢/'l 5
-
_
_
_ _
i i
!
__-__-
i
7CC$0-XXU"-LCI
7M
P C.
PO-.,,qT-.
Al--
4
l
.-
l(o
A4-(
O
_______
1
I
____
__
_LI
I-
S
CAPOOT
.A
-
al-D
.
WIRING
DIAGRAMG--
:
2040
'
(-,i-
7
4,,~,,o
o.
c
cl..7D
D
,-
L.
|
t
a
j5l
_
_|r_
A_
v
U1
40
.I0l
CIO
OV
S-
>JQ
_ICH
_S0 _
p_
¢IIut-aXXu
.!
III,.W.,!:.
o.
Cu
|
71379
07
70 6
10
S-XX.
Or
CM1
-
-l
5
:
O7THI
__~
l_ _____________
SZ
-CALE
OIQ
-
II82
PAoC.
I1'i4:
20-40

Table of Contents

Related product manuals