EasyManua.ls Logo

Danfoss iC7 Series - 10.2.2 Dimensions of the Inverter Module, IR10 L

Danfoss iC7 Series
224 pages
Print Icon
To Next Page IconTo Next Page
To Next Page IconTo Next Page
To Previous Page IconTo Previous Page
To Previous Page IconTo Previous Page
Loading...
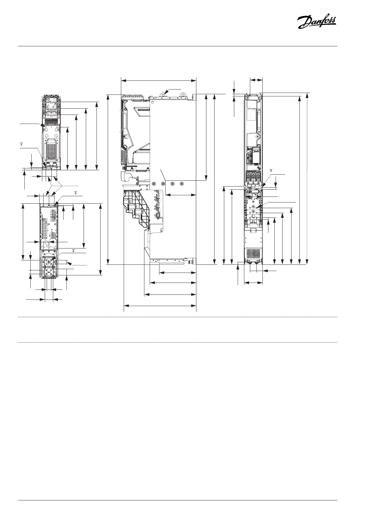
10.2.2 Dimensions of the Inverter Module, IR10L
29
3xØ4.5
(3xØ0.18)
Ø18
(Ø0.71)
3xM6
(1.14)
29
(1.14)
30
(1.18)
32
(1.26)
60
(2.36)
566
(22.28)
95
(3.74)
140
(5.51)
45
(1.77)
50
(1.97)
279
(10.98)
349
(13.74)
391
(15.39)
545
(21.46)
233
(9.17)
41
(1.61)
515
(20.28)
(50.35)
589
(23.19)
17
(0.67)
564
(22.20)
352
(13.86)
14
(0.55)
14
(0.55)
(5.04)
650
(25.59)
1282
(50.47)
16.5
(0.65)
389
(15.31)
426
(16.77)
1267.5
(49.90)
1291.5
(50.85)
466
(18.35)
417
(16.42)
323.5
(12.74)
15
(0.59)
427
(16.81)
5
(0.20)
15
(13.27)
(21.28)
75
(2.95)
28
(1.10)
(1.10)
28
(1.92)
49
5
(0.20)
14 (0.55)
14 (0.55)
8xM8
max.15 (0.59)
4xM6
128
(3x2)xM10
15 (0.59)
A
e30bh474.10
40
(1.57)
C
B
A Center of gravity B View from the bottom
C View from the top
Figure 128: Dimensions of INU, IR10L, in mm (in)
128 | Danfoss Drives Oy © 2024.03 AJ475942178716en-000101 / 172K2848A
Design Guide | iC7 Series Liquid-cooled System Modules

Table of Contents

Other manuals for Danfoss iC7 Series

Related product manuals