EasyManua.ls Logo

Danfoss iC7 Series - Page 64

Danfoss iC7 Series
224 pages
Print Icon
To Next Page IconTo Next Page
To Next Page IconTo Next Page
To Previous Page IconTo Previous Page
To Previous Page IconTo Previous Page
Loading...
1
22
3
4
1
4
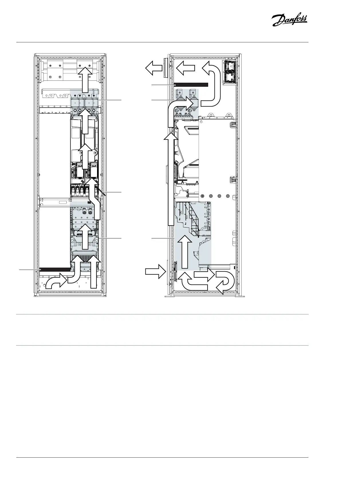
e30bk506.10
Figure 55: Example of Air Circulation Inside an Enclosure
1 Air deflector 2 Critical area (DC fuses and busbars)
3 Air block between wall and system module 4 Critical area (fuses, terminals, busbars, power cables, and
electrical components)
64 | Danfoss Drives Oy © 2024.03 AJ475942178716en-000101 / 172K2848A
Design Guide | iC7 Series Liquid-cooled System Modules

Table of Contents

Other manuals for Danfoss iC7 Series

Related product manuals