EasyManua.ls Logo

Delta MH300 Series - Page 125

Delta MH300 Series
1030 pages
Print Icon
To Next Page IconTo Next Page
To Next Page IconTo Next Page
To Previous Page IconTo Previous Page
To Previous Page IconTo Previous Page
Loading...
Chapter 7 Optional AccessoriesMH300
7-60
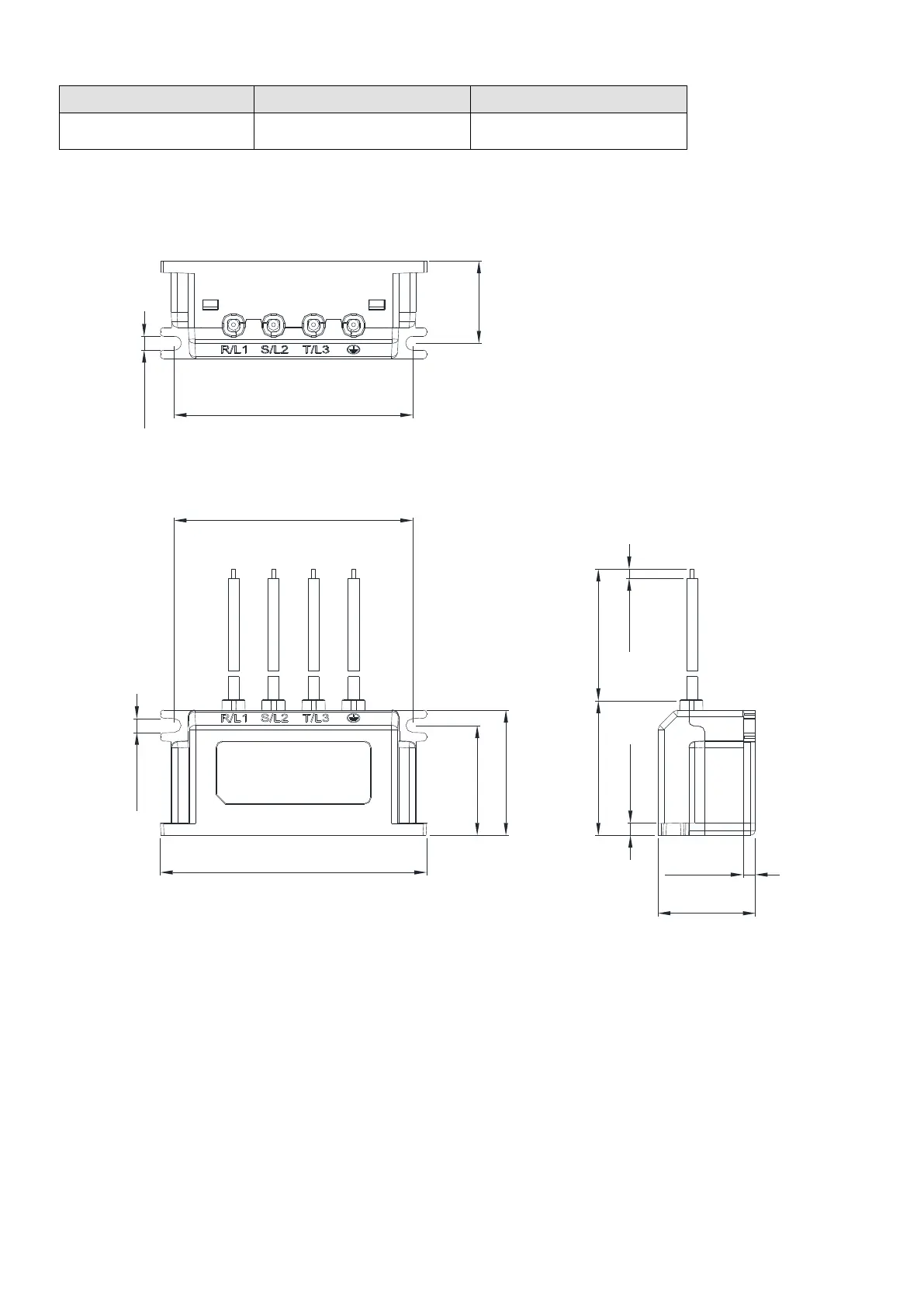
Specifications
Model Capacitance Temperature range
CXY101-43A
Cx: 1 μF ± 20 %
Cy: 0.1 μF ± 20 %
-40+85°C
Table 7-64
Dimensions
Unit: mm [inch]
Fig. 7-62
86.5 [3.41]
35.5 [1.40]
40.5 [1.59]
77.5 [3.05]
4.5 [0.18]
350 [13.78]
10 [0.39]
43.5 [1.71]
4.0 [0.16]
31.6 [1.24]
4.0 [ 0.16]
77.5 [3.05]
26.6 [1.05]
4.5 [0.18]

Table of Contents

Related product manuals