EasyManua.ls Logo

Delta MH300 Series - 2-9 Frame I

Delta MH300 Series
1030 pages
Print Icon
To Next Page IconTo Next Page
To Next Page IconTo Next Page
To Previous Page IconTo Previous Page
To Previous Page IconTo Previous Page
Loading...
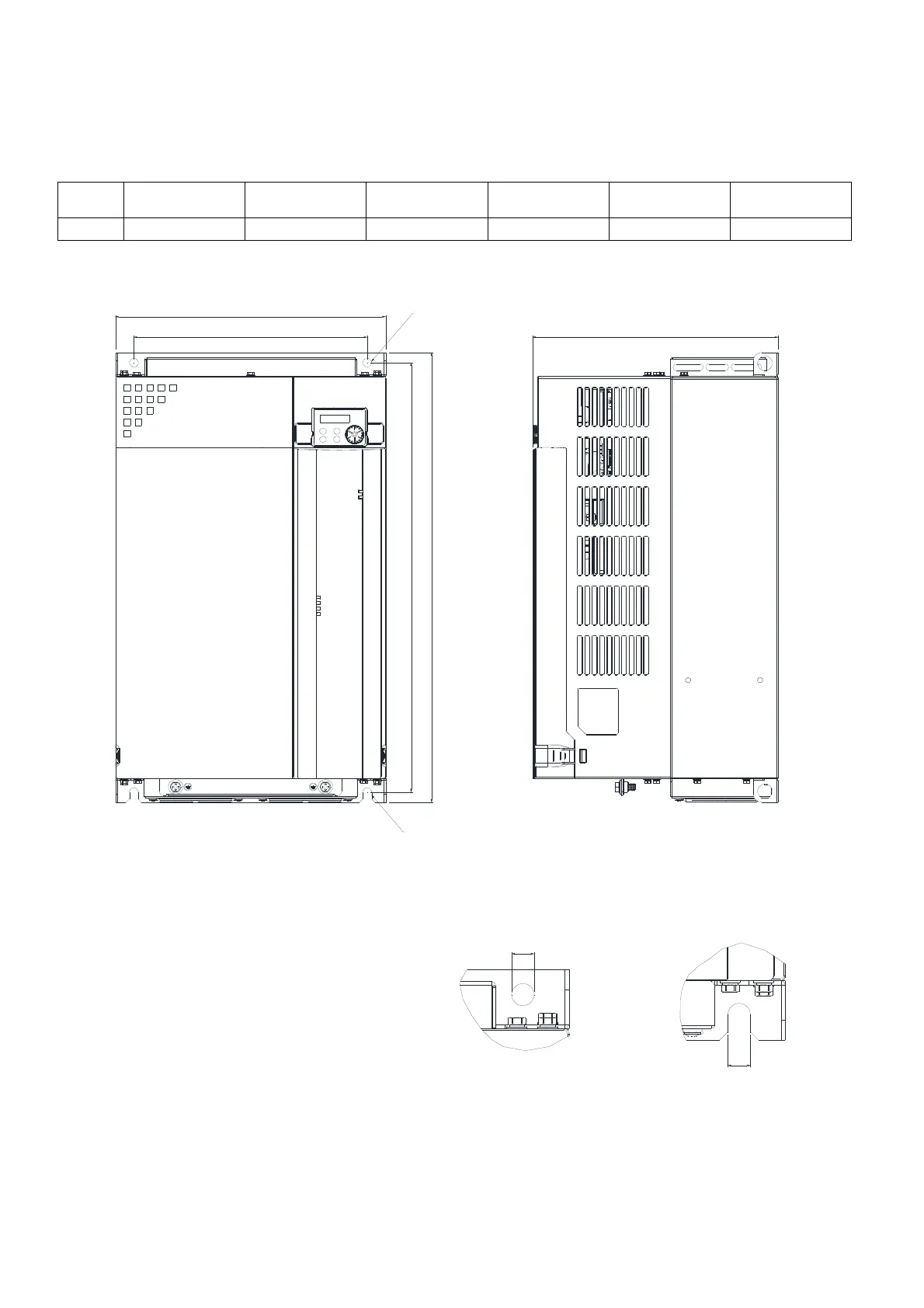
Chapter 2 DimensionsMH300
2-10
2-9 Frame I
I: VFD112MH43AFSAA; VFD112MH43ANSAA; VFD120MH23ANSAA; VFD146MH23ANSAA;
VFD150MH43AFSAA; VFD150MH43ANSAA
Unit: mm (inch)
Fr
ame W H D
W1 H1
S1
I 330.0 (12.99) 550.0 (21.65) 300.0 (11.81) 285.0 (11.22) 525.0 (20.67) 11.0 (0.43)
W1
W
H1
H
D
S1
S1
DETAIL A
(MOUNTING HOLE)
DETAIL B
(MOUNTING HOLE)
SEE DETAIL A
SEE DETAIL B

Table of Contents

Related product manuals