EasyManua.ls Logo

Epson ES Series - EL series

Epson ES Series
236 pages
Print Icon
To Next Page IconTo Next Page
To Next Page IconTo Next Page
To Previous Page IconTo Previous Page
To Previous Page IconTo Previous Page
Loading...
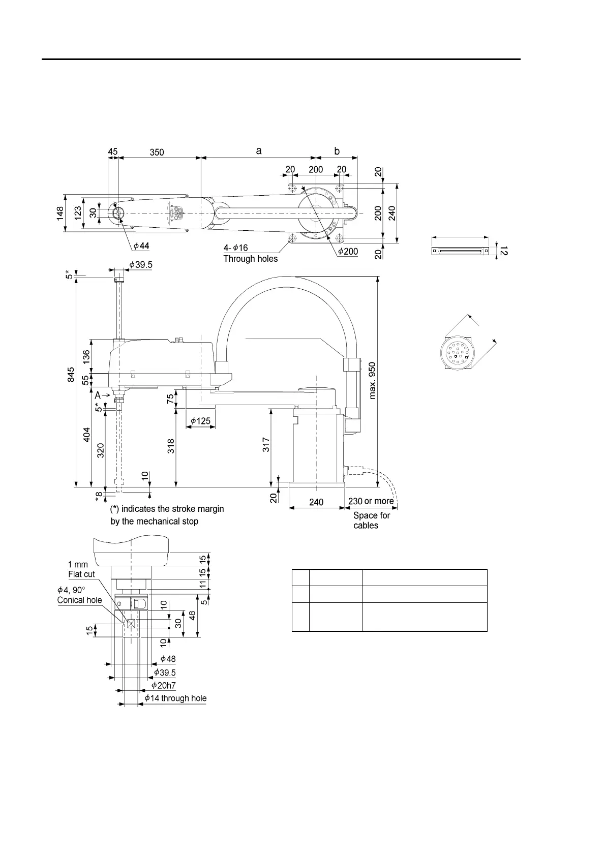
7. External Dimensions Part 1: Setup & Operation
34
EL series
* If the manipulator is a Clean model, refer to chapter 11. Clean Model.
* If the manipulator is a Protected model, refer to chapter 12. Protected Model.
Duct support
(for EL853S only)
View A detail
(Calibration point position of Joint #3 & #4)
Si
g
nal cable connector
65
50
Power cable connector
Figure 20-2. External dimensions of EL [unit : mm
]
EL653S EL853S
a
300 500
b
178
185
(including the duct support)
The shaft of EL**3S will reach lower than the
bottom of the manipulator base when it is fully
lowered. Pay attention to it when you design a
layout.

Table of Contents

Related product manuals