EasyManua.ls Logo

Kollmorgen MMC Smart Drive - Page 125

Kollmorgen MMC Smart Drive
322 pages
Print Icon
To Next Page IconTo Next Page
To Next Page IconTo Next Page
To Previous Page IconTo Previous Page
To Previous Page IconTo Previous Page
Loading...
Kollmorgen - December 2011 123
MMC Smart Drive Hardware Manual - 230V 1/3 PHASE MMC SMART DRIVE
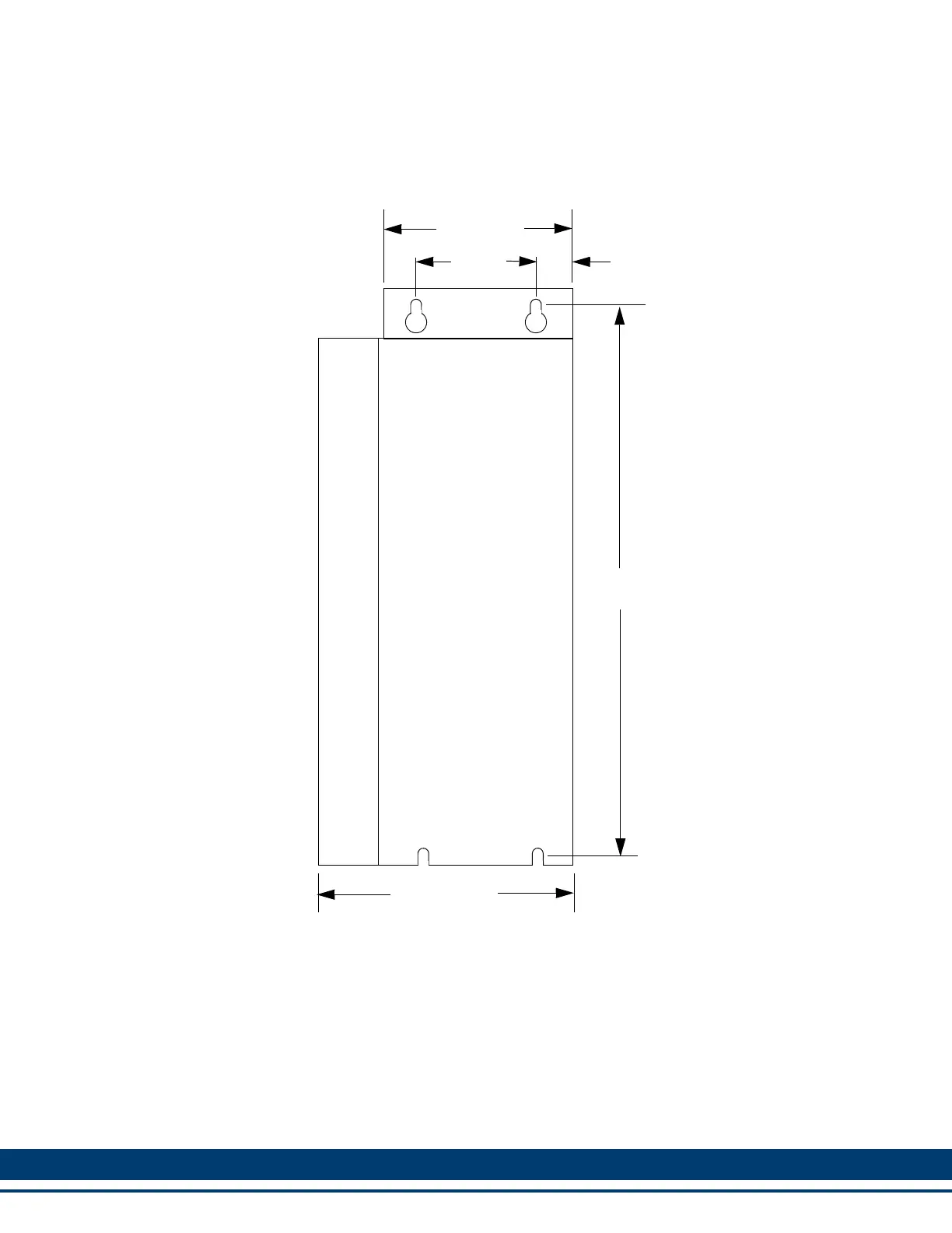
Figure 5-10: 1, 2, and 3 kW Narrow Drive (-DN) - Front View
3.96 in
(100.59 mm)
2.49 in
(63.25 mm)
1.49 in
(37.85 mm)
.50 in
(12.70 mm)
9.69 in
(246.13 mm)
H
E
A
T
S
I
N
K

Table of Contents