EasyManua.ls Logo

Kollmorgen MMC Smart Drive - 7 460 V 3-Phase MMC Smart Drive; 7.2 Power Section Connectors

Kollmorgen MMC Smart Drive
322 pages
Print Icon
To Next Page IconTo Next Page
To Next Page IconTo Next Page
To Previous Page IconTo Previous Page
To Previous Page IconTo Previous Page
Loading...
Kollmorgen - December 2011 165
MMC Smart Drive Hardware Manual - 460V 3 PHASE MMC SMART DRIVE NEXTGEN
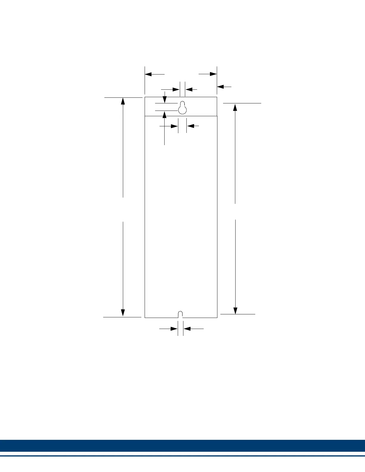
Figure 6-6: 3, 6, and 12 Amp Drives - Front View
2.76 in
(70 mm)
.50 in
(12.70 mm)
9.57 in
(243 mm)
.197 in
(5 mm)
10.08 in
(256 mm)
.197 in
(5 mm)
.413 in
(10.5 mm)
.276 in
(7 mm)

Table of Contents