EasyManua.ls Logo

LSIS XEC-DP64H - Appendix 4 Dimension

LSIS XEC-DP64H
315 pages
Print Icon
To Next Page IconTo Next Page
To Next Page IconTo Next Page
To Previous Page IconTo Previous Page
To Previous Page IconTo Previous Page
Loading...
Appendix 4 Dimension
App. 4
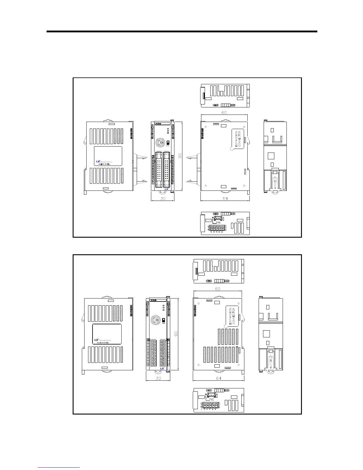
Appendix 4 Dimension (Unit : mm)
(1) Standard main unit
-. XBM-DN16S/32S
P00~07 P20~27
RUN
PWR
ERR
XBM-DN16S
RUN
RS-232C
-. XBM-DR16S
RUN
PWR
ERR
XBM-DR16S
RS-232C
RUN
P00~07 P20~27

Table of Contents

Related product manuals