EasyManua.ls Logo

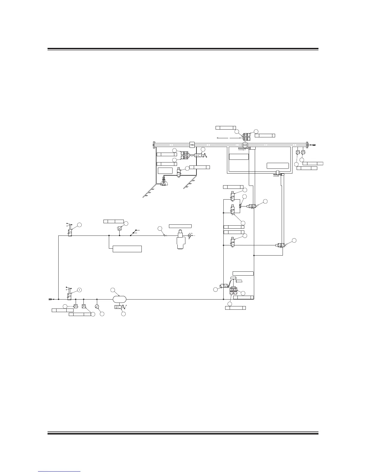
Man B&W S80ME-C7 - Pneumatic Manoeuvring Diagram

Man B&W S80ME-C7
353 pages
Print Icon
To Next Page IconTo Next Page
To Next Page IconTo Next Page
To Previous Page IconTo Previous Page
To Previous Page IconTo Previous Page
Loading...
MAN B&W 16.01
Page 8 of 8
MAN Diesel
MAN B&W ME/MEC engines 198 48 476.5
3ERVICEBLOCKED





:3æç!"æ#
:3æç!"æ#
:6æçæææææ#
:6æç!æææææ#
04æç"æ)!#
04æç!æ)!#
:3æç!"æ#
:3æç!"æ#
:6æç"æææææ#
:6ææææææææææ#
:3æç!"æ#
:3æç!"æ#
04ææ!,æ9,
04æç!æ)!,#
04æç"æ)!,#
3TARTINGæAIR
SUPPLYææBAR
!


3LOWæTURNING
VALVE
/PEN
X
X
/PEN
-AINæSTARTING
VALVE




3TARTING
VALVES


3AFETYæRELIEFæ
VALVE
X
XX
X
X
X
4URNINGæGEAR



"
#ONTRO
AIRæSUPPLYæ
æBAR

#ONNECTEDæTO
OILæMISTæDETECTOR

%XHAUSTæVALVE

Pneumatic Manoeuvring Diagram
178 49 738.2
Fig. 16.01.03: Pneumatic Manoeuvring Diagram

Table of Contents

Related product manuals