EasyManua.ls Logo

Siemens simovert masterdrives - 8.1 Parameter Input via PMU; PMU Parameterizing Unit Diagram; PMU Operator Control Elements

Siemens simovert masterdrives
1547 pages
To Next Page IconTo Next Page
To Next Page IconTo Next Page
To Previous Page IconTo Previous Page
To Previous Page IconTo Previous Page
Loading...
Configuration and Connection Examples 12.2010
6SE7087-6QX70 (Version AM) Siemens AG
2-10 Compendium Motion Control SIMOVERT MASTERDRIVES
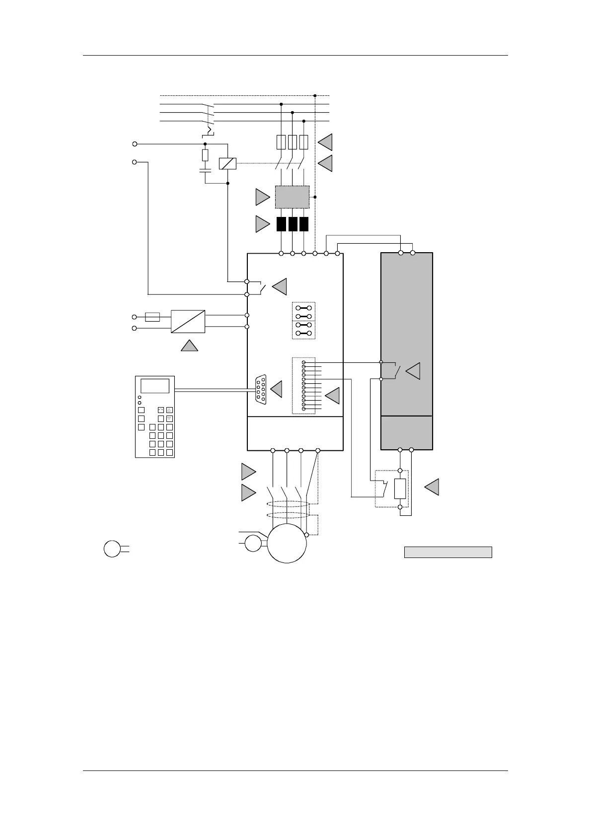
AC-AC converter
compact or chassis type
U2 V2 W2 PE2
1
2
PE
L1
L2
L3
3AC 50 - 60 Hz
380 - 480 V
external
Braking resistor
X103
USS-Bus
4
3
14
1
Main switch
X2
G
SBx in
Slot C
M
3 ~
PTC/KTY
15
13
X101
9
Line filter
2
Control
voltage
AC 230 V
A1
A2
Q1
CD
Braking unit
19
U1 V1 W1 PE1
5
X1
Control
voltage
AC 230 V
G
Motor encoder:
- Resolver
- Encoder
- Pulse encoder
- Multiturn encoder
X300
789
654
123
Reset
0
Jog
O
I
P
Fault
Run
+/-
OP1S
11
7
9
X9
SST1
SST2
4
5
X38
GHX6
X3
20
CD
24 V
230 V
+ 24 V
0 V
1
12
5
Options are shaded in grey
Fig. 2-4 Configuring example: single-axis drive with Compact or chassis-type
units

Table of Contents

Other manuals for Siemens simovert masterdrives

Related product manuals