EasyManua.ls Logo

Siemens simovert masterdrives - Page 816

Siemens simovert masterdrives
1547 pages
Print Icon
To Next Page IconTo Next Page
To Next Page IconTo Next Page
To Previous Page IconTo Previous Page
To Previous Page IconTo Previous Page
Loading...
08.2012 Technology Option F01
Siemens AG 6SE7087-6QX70 (Version AN)
SIMOVERT MASTERDRIVES Compendium Motion Control 9-125
M
A
S
T
E
R
D
R
I
V
E
S
M
C
1
2
3
4
5
6
7
8
T
e
c
h
n
o
l
o
g
y
T
r
a
i
n
i
n
g
:
A
p
p
lic
a
t
io
n
E
x
a
m
p
l
e
2
P
o
s
it
i
o
n
in
g
/
S
y
n
c
h
r
o
n
iz
a
t
io
n
w
it
h
2
-
A
x
is
D
e
m
o
n
s
t
r
a
t
i
o
n
P
a
c
k
t
s
s
*
v
*
V
ir
t
u
a
l m
a
s
t
e
r
v
a
lu
e
V
i
r
t
u
a
l
m
a
s
t
e
r
t
a
x
i
s
[
8
3
2
]
U
6
8
1
=
1
1
K
K
8
1
7
K
K
8
1
7
P
o
s
it
io
n
in
g
in
p
u
t
s
ig
n
a
ls
M
o
d
e
:
-
H
o
m
in
g
[
8
3
6
]
-
S
e
t
u
p
[
8
3
8
]
-
M
D
I
[
8
4
2
]
-
S
y
n
c
h
r
o
n
iz
a
t
io
n
[
8
1
0
.
.
.
8
1
4
]
C
o
n
t
r
o
l
s
ig
n
a
ls
.
..
A
c
t
u
a
l
p
o
s
it
io
n
U
7
5
1
.
1
=
8
1
7
U
7
5
1
.
2
=
8
1
7
C
h
a
n
n
e
l
1
(
3
2
-
b
i
t
m
e
s
s
a
g
e
)
S
I
M
O
L
I
N
K
s
e
n
d
lin
e
S
I
M
O
L
I
N
K
r
e
c
e
iv
e
lin
e
U
6
0
0.
1
=
7
0
3
1
L
o
g
ic
c
ir
c
u
it
f
r
o
m
f
r
e
e
b
lo
c
k
s
M
o
d
e
D
I
N
1
D
I
N
2
D
I
N
3
D
I
N
4
D
I
N
5
D
I
N
6
A
c
k
n
o
w
le
d
g
e
J
o
g
+
/
s
t
a
r
t
R
o
u
g
h
p
u
ls
e
/
M
D
I
n
o
.
O
N
/
O
F
F
M
O
D
E
_
I
N
P
o
s
it
io
n
in
g
c
o
n
t
r
o
l
w
o
r
d
[
8
0
9
]
[
8
0
9
..
.
8
1
8
]
s
*
v
*
t
t
P
o
s
itio
n
V
e
lo
c
it
y
U
5
5
0
.
3
.
.
.
U
5
5
9
.
3
:
V
e
lo
c
it
y
F
U
5
5
0
.
2
.
.
.
U
5
5
9
.
2
:
P
o
s
it
io
n
X
U
5
5
0
.
1
.
.
.
U
5
5
9
.
1
:
G
f
u
n
c
t
i
o
n
s
r
e
la
t
i
v
e
/
a
b
s
o
lu
t
e
M
D
I
-
P
o
s
it
io
n
i
e
r
e
n
[
8
2
3
]
1
0
p
e
r
m
a
n
e
n
t
M
D
I
b
lo
c
k
s
M
a
s
t
e
r
a
x
is
p
a
t
h
s
e
t
p
o
in
t
v
*
s
J
_
F
W
D
R
o
u
g
h
p
u
ls
e
R
o
t
o
r
z
e
r
o
H
o
m
i
n
g
[
8
2
1
]
M
o
d
e
m
a
n
a
g
e
r
(
o
u
t
p
u
t
s
ig
n
a
l
s
e
le
c
t
io
n
)
[
8
0
2
]
S
y
n
c
h
r
o
n
i
z
a
t
i
o
n
[
8
3
1
.
.
.
8
3
9
]
I
n
c
lu
d
in
g
p
a
t
h
s
la
v
e
a
x
is
s
e
t
p
o
i
n
t
M
o
d
e
P
o
s
itio
n
s
e
n
s
in
g
f
o
r
s
lo
t
C
[
3
3
0
]
+
-
S
p
e
e
d
s
e
n
s
in
g
[
2
3
0
]
[
5
0
0
]
S
p
e
e
d
c
o
n
t
r
o
lle
r
[
3
6
0
]
P
o
s
it
io
n
c
o
n
t
r
o
lle
r
[
3
4
0
]
+
-
+
s
*
n
*
n
_
a
c
t
S
_
a
c
t
R
e
s
o
l
v
e
r
Positioning
status word
[
8
4
8
]
K
K
8
1
1
T
h
i
s
s
e
c
t
i
o
n
o
n
l
y
e
x
i
s
t
s
w
i
t
h
"
m
a
s
t
e
r
d
r
i
v
e
"
T
h
i
s
s
e
c
t
i
o
n
e
x
i
s
t
s
w
i
t
h
b
o
t
h
d
r
i
v
e
s
n
6
9
0
S
p
e
e
d
s
e
t
p
o
in
t
R
a
m
p
-
f
u
n
c
t
i
o
n
g
e
n
e
r
a
t
o
r
K
K
8
6
0
[
1
5
0
]
[
1
6
0
]
[
8
0
]
[
9
0
]
B
a
s
ic
u
n
it
c
o
n
t
r
o
l
w
o
r
d
1
[
1
8
0
]
M
a
c
h
in
e
d
a
t
a
M
D
1
.
.
.M
D
5
0
U
5
0
1
U
5
0
2
[
8
0
4
]
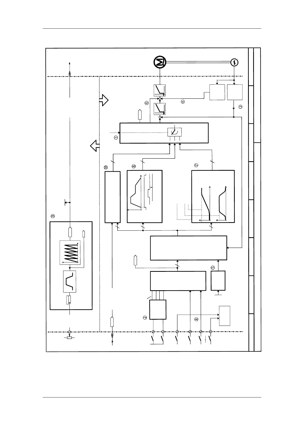
Fig. 9-47 Application example 2: positioning/synchronization with 2-axis
demonstration pack

Table of Contents

Other manuals for Siemens simovert masterdrives

Related product manuals