EasyManua.ls Logo

Siemens SINAMICS S120 - Page 451

Siemens SINAMICS S120
570 pages
To Next Page IconTo Next Page
To Next Page IconTo Next Page
To Previous Page IconTo Previous Page
To Previous Page IconTo Previous Page
Loading...
Accessories
8.1 Shield connecting plates
Booksize power units
Manual, (GH2), 06/2008, 6SL3097-2AC00-0BP6
451
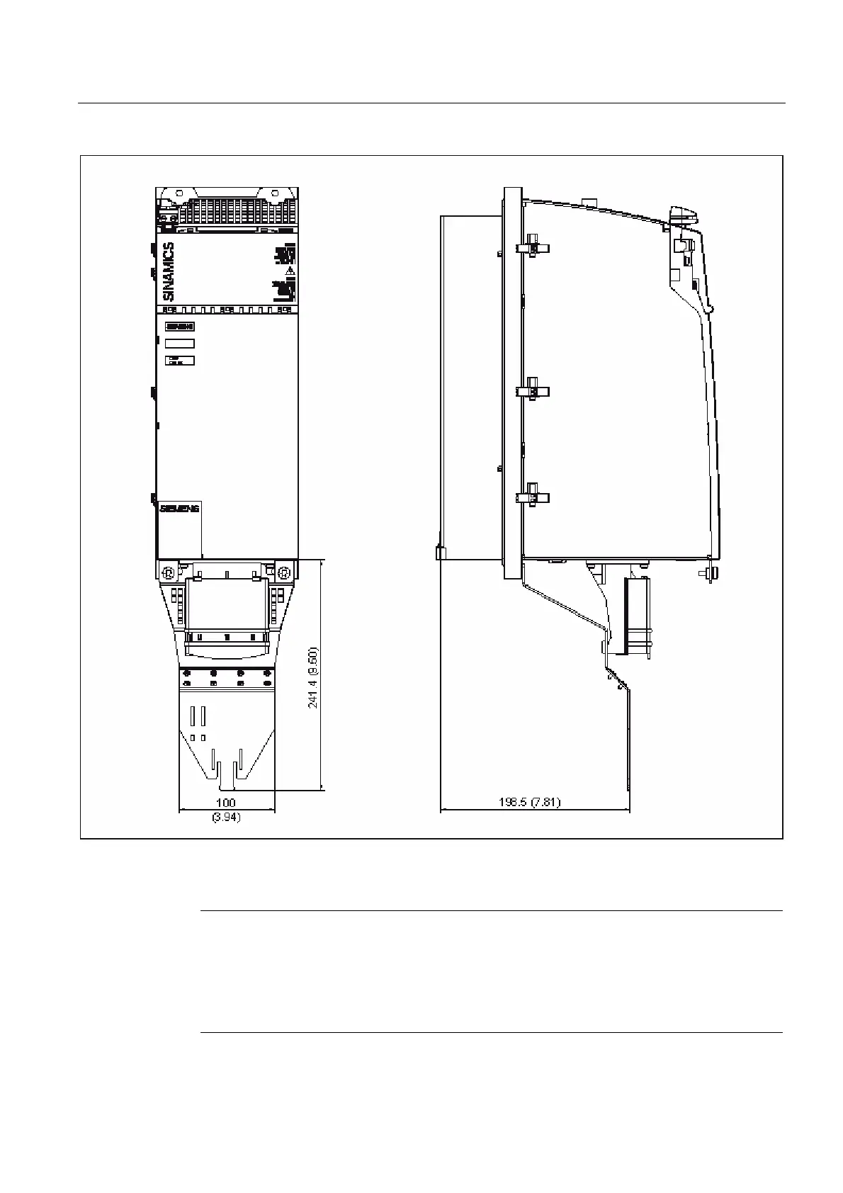
Figure 8-8 Dimension drawing of shield terminal plate on a 150 mm component (Line Module or Motor Module) with
external air cooling
Note
The shield connecting plate is available as an option: Siemens, Order No. 6SL3162-1AF00-
0BA1.
Recommended shielding connection clamps: Weidmüller, Order No. KLBÜ CO1 and KLBÜ
CO4
Weidmüller: http://www.weidmueller.com

Table of Contents

Other manuals for Siemens SINAMICS S120

Related product manuals