EasyManua.ls Logo

Siemens SINAMICS S120 - Page 90

Siemens SINAMICS S120
570 pages
To Next Page IconTo Next Page
To Next Page IconTo Next Page
To Previous Page IconTo Previous Page
To Previous Page IconTo Previous Page
Loading...
Line Connection Booksize
2.9 Active Interface Modules internal air cooling
Booksize power units
90 Manual, (GH2), 06/2008, 6SL3097-2AC00-0BP6











% 
E 
0
1P


%
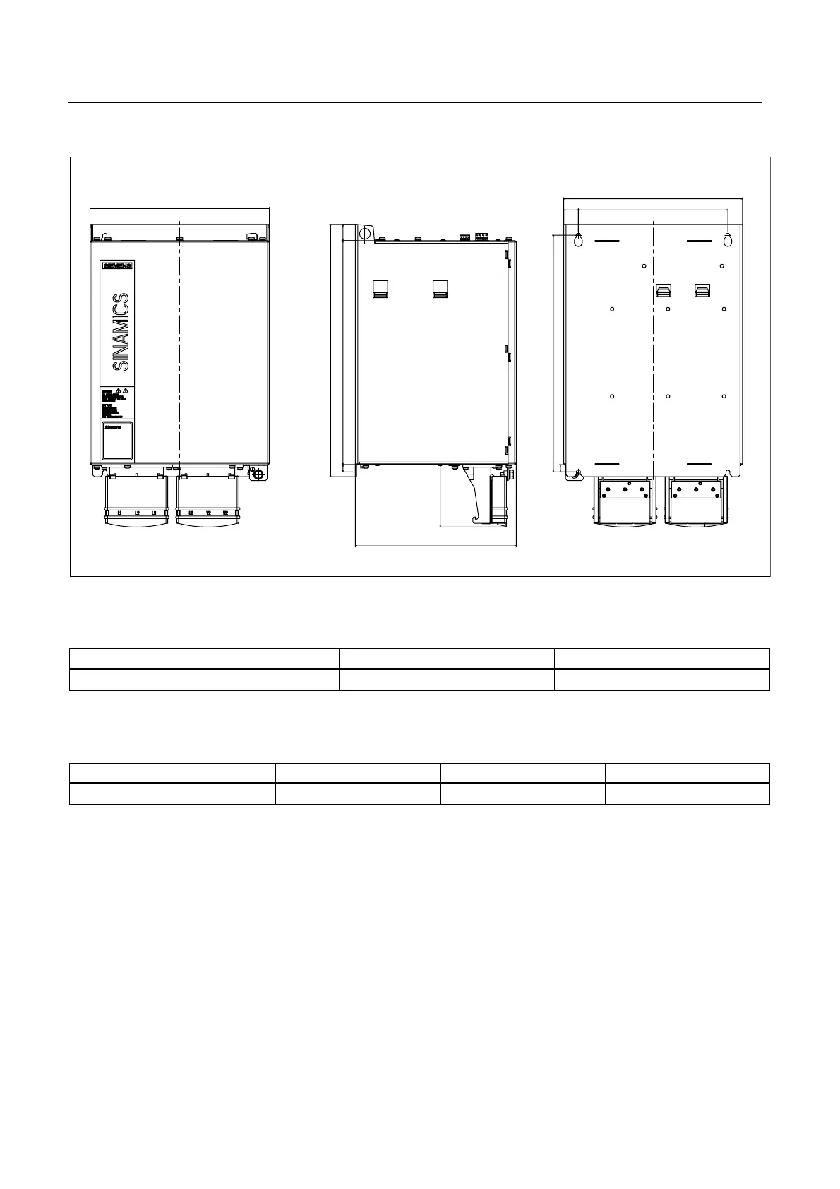
Figure 2-30 Dimension drawing: Active Interface Module 80 kW and 120 kW, all dimensions in mm and (inches)
Table 2-23 Active Interface Modules
Active Interface Module 6SL3100-0BE21-6ABO 6SL3100-0BE23-6ABO
16 kW 36 kW
Table 2-24 Active Interface Modules
Active Interface Module 6SL3100-0BE25-5ABx 6SL3100-0BE28-0ABx 6SL3100-0BE31-2ABx
55 kW 80 kW 120 kW

Table of Contents

Other manuals for Siemens SINAMICS S120

Related product manuals