EasyManua.ls Logo

WAREMA climatronic - Page 22

WAREMA climatronic
144 pages
Print Icon
To Next Page IconTo Next Page
To Next Page IconTo Next Page
To Previous Page IconTo Previous Page
To Previous Page IconTo Previous Page
Loading...
890370_0•en•01.06.2009
We reserve the right to carry out improvements
22
WAREMA climatronic
®
Installation Instructions
R
- +
Output 24V / 2,5A
Power supply unit Control panelAdditional
devices
Switch actuator Weather station
X5
0V 24V
Supply
ws
ge
X6
A B
RS 485
sw
rt
X5
0V 24V
Supply
ws
ge
X6
A B
RS 485
sw
rt
R
X5
0V 24V
Supply
ws
ge
X6
A B
RS 485
sw
rt
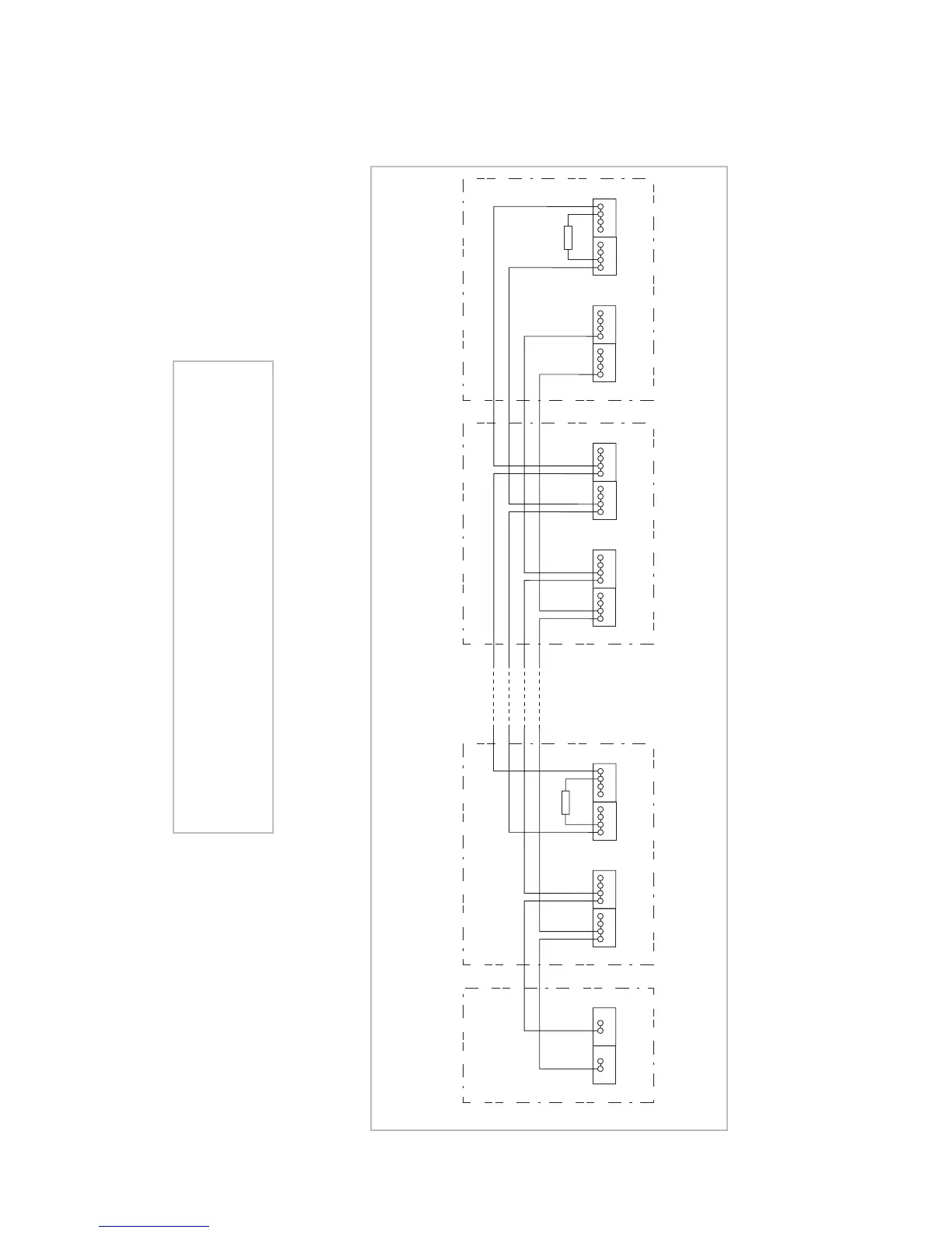
Fig. 7 Basic network structure
CAUTION
The network must be set up according to a line structure with
a 120 Ω terminating resistor on both ends. Star circuits or ring
circuits are not permitted; see Chapter 4.3.
Installation

Table of Contents

Related product manuals