EasyManua.ls Logo

WAREMA climatronic - Page 29

WAREMA climatronic
144 pages
Print Icon
To Next Page IconTo Next Page
To Next Page IconTo Next Page
To Previous Page IconTo Previous Page
To Previous Page IconTo Previous Page
Loading...
890370_0•en•01.06.2009 We reserve the right to carry out improvements
29
170 mm
76 mm
4x
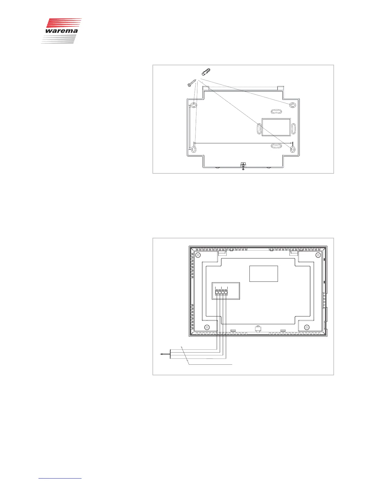
Fig. 11 Installation of the base plate
NOTE Ensure that the mounting surface is not uneven. The base plate may oth-
erwise become warped and the control panel would not be able to engage
properly.
Connect the individual wires according to the following diagram; observe the
colours of the terminals.
X5
0V
A
B
24V
X6
wt yl
bk
rd
JY(St)Y 2x2x0,8mm ø
wt
yl
bk
rd
to additonal
components
RS 485
Fig. 12 Control panel wiring diagram
Installation

Table of Contents

Related product manuals