EasyManua.ls Logo

Yamaha FJR1300A(D) - Page 450

Yamaha FJR1300A(D)
662 pages
Print Icon
To Next Page IconTo Next Page
To Next Page IconTo Next Page
To Previous Page IconTo Previous Page
To Previous Page IconTo Previous Page
Loading...
IGNITION SYSTEM
8-1
EAS27090
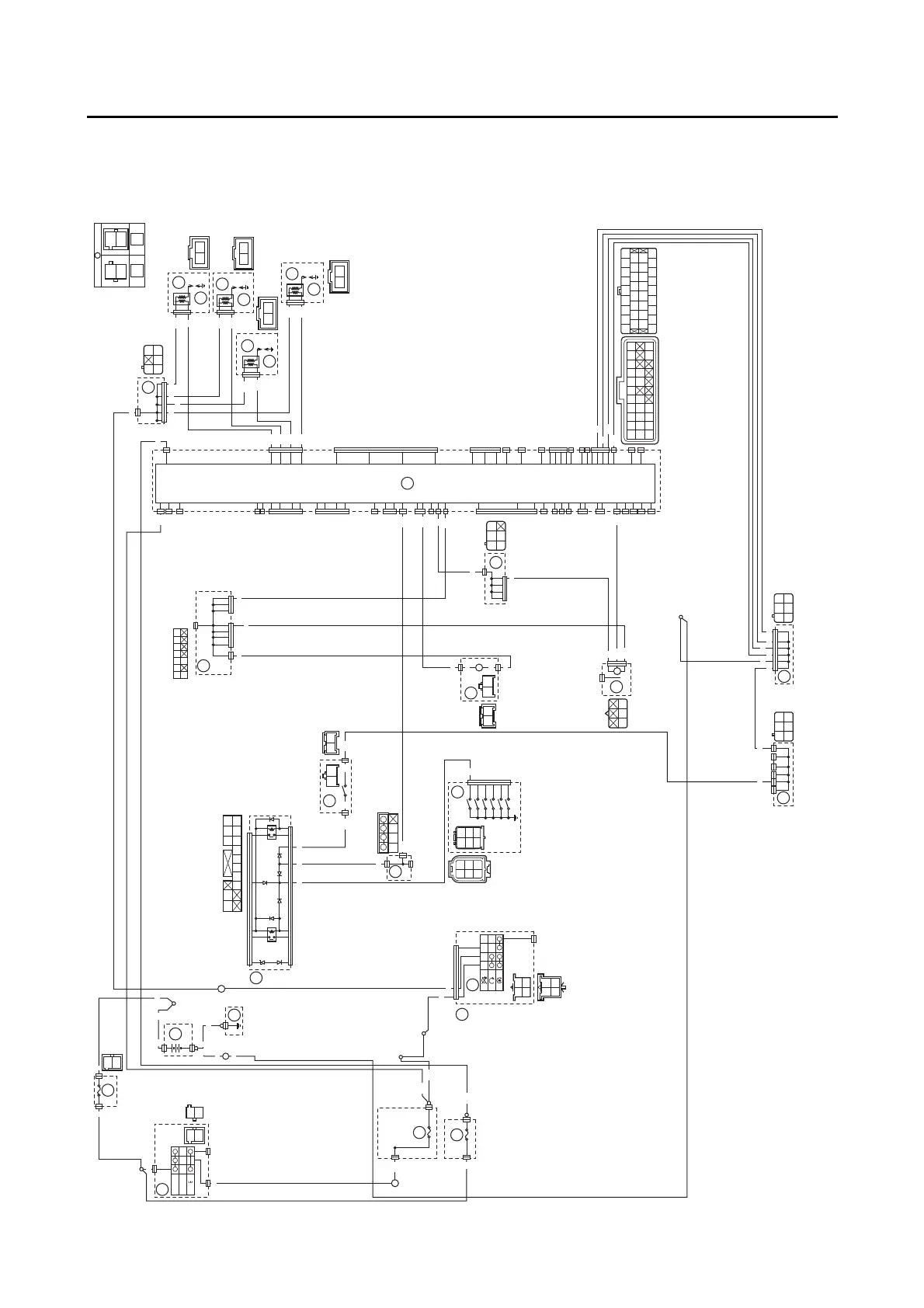
IGNITION SYSTEM
EAS27110
CIRCUIT DIAGRAM
P
ON
OFF
A
Br/L
R
R
R/W
R/B
B/R
L/GB B
B/W
Sb B/R
B/R
L/G
B
B
B
B
B
RR
B/W
B/W
B/W
B/WBB
B/W
Y/G
L
B/L
Gy
B
Gy/W
L
L
R/W
B/R
Gy/W
B
B
Y/G
Br/W
R/BR/B
R/B
R/B
R/B
O
R/B
B/LB/L
Sb
B/W
B/W
Gy Gy
R/B
R/B
Gy/R
R/B
Gy/R
O
Br/L
Br/W
R/W
R/W
RR
R
B/L
B/L
L
B/L
B/W
O/G
O/G
R
Br/L
R
R
P
Sb
Y/W
L/WB/R
B/Y
BB
BGy
R/B
B
R/W
W/L
R
Br/L
B/RB/R
G/W
B/WB/WB/W
B/WB/WB/W
Y/GB/L
L
Gy/R
R/B
O
R/B
LLL
LL
B
B/WB/W
B/WB
B/W
(B)
O/GG/Y
L/YL/B
Gy/RY/W
B
B
GyO
P
G/B
R/B
W/RW/R
Lg/RY/RR/L
L
B/W
O/BBr/RBr/WR/W
(B)
Y/R
B/R
B/L
B/LB/L
Y/L
B/YY/GL/YGy
W/Y
B/WP/WW/GLg/L
Lg/B
PLL
L/RR/LW/B
W
BB
W
O/W
Br/LBr/W
G/L
L/W
L/B
Gy/WG/W
R/BR/B
R/BR/BR/B
B/L
Gy/W
L/G
B/W
R/B
R/W
W/L
B
Y/W
B/RL/W
Sb
P
B/Y
Br/WL/WR/BR/LW/L
L/W
L/Y
R/WL/GB/R
B/Y
Sb/W
Sb
B/LBB/L
B/LB/L
B/LB/LB/LB/L
(Y)
(B)
(B)
Gy
R/B
(B)
O/G
R/B
(B)
A B
A
B
B/G
B/G
B
2
5
5
5
5
5
5
9
16
25
26
27
32
35
43
45
90
102
103
104
105
106
107
107
107
107
94
41

Table of Contents

Related product manuals